Vuokrataan toimistotilat - Helsinki
Vilhonvuorenkatu 12, Sörnäinen, 00580 Helsinki #10851734
Vuokrattavana modernia toimistotilaa Kalasataman Kummelissa, Helsingissä.
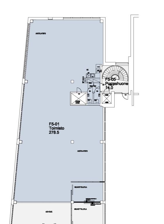
Tämä 278,5 m² toimisto sijaitsee kiinteistön 5. kerroksessa. Toimisto on avonainen, ja siihen kuuluvat omat wc- ja keittiötilat. Toimistossa on myös yksi neuvotteluhuone. Kuvat ovat esimerkkejä kiinteistön mallitoimistosta.
Kalasataman Kummeli sijaitsee hyvien kulkuyhteyksien varrella Kalasatamassa. Kiinteistö on peruskorjattu täyden palvelun Business Park- taloksi. Merihenkisessä talossa on monipuolisesti erilaisia palveluita kuten aula- ja postipalvelu, kokous- ja ravintolapalvelu, klubiauto, autopesu ja muuttopalvelut.
Kysy lisää numerosta 044 723 4700 tai info@bref.fi. Palvelumme on tilanhakijoille ilmainen.
Hissi
Bureau Real Estate Finland Oy
Lars Sonckin kaari 16, 02600 Espoo
Näytä puhelinnumero
0447234700
Bureau Real Estate Finland Oy
https://www.bref.fi