Vuokrataan liiketilat - Helsinki
Topeliuksenkatu 16, Töölö, 00250 Helsinki #10851691
Uusi ja valoisa 76,5 m2:n liiketila odottaa yritystä Helsingin Töölössä!
Osoite
Topeliuksenkatu 16, 00250 Helsinki
Tilatyyppi
Liiketilaa
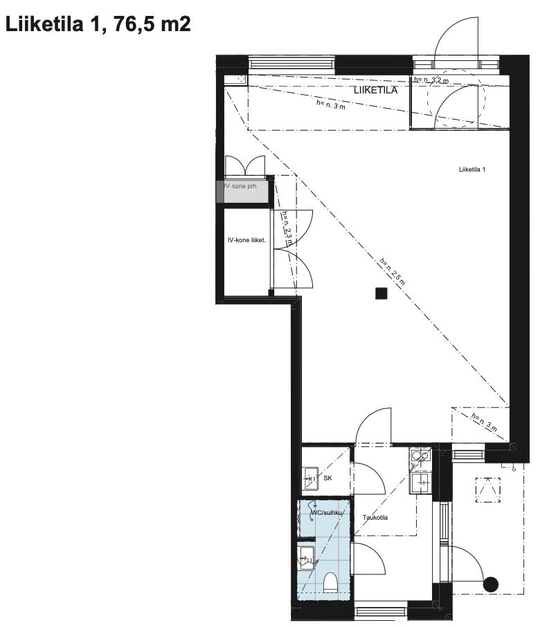
76,5 m2
Kiinteistö
Tämä vuonna 2023 valmistunut 76,5 m2:n liiketila on valoisa ja tarjoaa runsaasti luonnonvaloa suurista ikkunoista, mikä luo miellyttävän ja inspiroivan ympäristön liiketoiminnallesi. Kohteessa on kaukolämpö ja koneellinen ilmanvaihto huolehtii raikkaasta sisäilmasta. Takatiloissa on näyttävä keittiö ja sekä kulku sisäpihalle. Takatilan kruunaa isot ikkunat.
Sijainti
Liiketila sijaitsee keskeisellä paikalla Topeliuksenkadulla, lähellä Mechelininkadun, Nordenskiöldinkadun ja Linnankoskenkadun laajaa risteysaluetta. Paikalta on erinomaiset liikenneyhteydet, sillä bussipysäkki on kiinteistön edessä ja autolla pääsee helposti perille eri suunnista tultaessa.
Palvelut
Lähellä on useita kivijalkaliikkeitä, sekä mm. ravintoloita, kahviloita ja Posti.
Muuta
Asunto Oy Töölön Castellum on lähellä kaupungin sykettä ja vehreitä puistoja, mikä tekee tästä kohteesta houkuttelevan valinnan monenlaisille kaupallisille toimijoille. Tämä on tilaisuutesi sijoittaa kasvavaan ja elinvoimaiseen alueeseen – älä jää paitsi!
Tila ei sovellu ravintolatoimintaan.
Tila ei sovellu ravintolatoimintaan.
Vapautuu
Heti
Rakennusvuosi
2023
Kerros
1
Energiatehokkuusluokka
B2018
Katutasossa
Ota yhteyttä
MAP Tilat Oy
Maarit Helander
Näytä puhelinnumero
044 593 8661
maarit.helander@maptilat.fi
Mika Hermaala
Näytä puhelinnumero
040 192 1313
mika.hermaala@maptilat.fi
Energiakuja 3, 00180 Helsinki
Pyydä lisätietoa
