Vuokrataan toimistotilat - Helsinki
Itämerenkatu 1, Ruoholahti, 00180 Helsinki #10851687
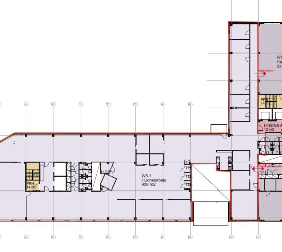
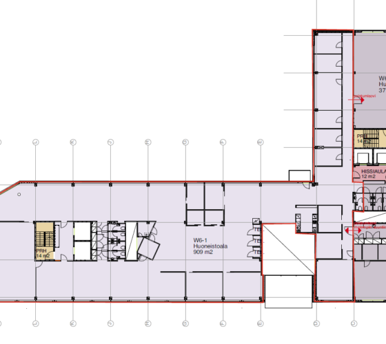
Kuudennen kerroksen 909 m² toimisto merellisistä maisemista, Ruoholahdesta
Osoite
Itämerenkatu 1, 00180 Helsinki
Tilatyyppi
Toimistotilaa
909 m2
Pohjapiirros
Virtuaaliesittely
Kiinteistö
Ilmoituksen kuvat ovat yleiskuvia kiinteistön tiloista.
Westport sijaitsee vilkkaassa ja urbaanissa Ruoholahdessa, aivan Länsisataman tuntumassa. Erinomaisten liikenneyhteyksien ansiosta perille pääsee vaivattomasti niin julkisilla kulkuvälineillä, autolla kuin pyörällä Baanaa pitkin. Westport toimii Helsingin luontevana läntisenä porttina maailmalle.
Westportin modernit ja korkeatasoiset toimitilat vastaavat nykypäivän työelämän vaatimuksiin. Tilojen ilme on valoisa, raikas ja huoliteltu. Joustava pohjaratkaisu mahdollistaa toimiston toteuttamisen joko avo- tai huonetoimistona – juuri yrityksesi tarpeiden mukaan.
Vuokralaisten käytössä on monipuoliset neuvottelutilat: kaksi 12 hengen sekä kuusi neljän hengen kokoustilaa. Lisäksi talosta löytyy uusi, 20 hengen studio, joka soveltuu erinomaisesti esimerkiksi hybriditilaisuuksiin, tapahtumiin tai kisakatsomoiksi. Westport tarjoaa myös nykyaikaisen kuntosalin sekä viihtyisät ja avarat sauna- ja kokoustilat.
Katutasossa sijaitseva ravintola Gresa tarjoilee laadukasta ja edullista lounasta sekä vastaa kokoustarjoiluista Westportin toimistoihin ja neuvottelutiloihin.
Westport sijaitsee vilkkaassa ja urbaanissa Ruoholahdessa, aivan Länsisataman tuntumassa. Erinomaisten liikenneyhteyksien ansiosta perille pääsee vaivattomasti niin julkisilla kulkuvälineillä, autolla kuin pyörällä Baanaa pitkin. Westport toimii Helsingin luontevana läntisenä porttina maailmalle.
Westportin modernit ja korkeatasoiset toimitilat vastaavat nykypäivän työelämän vaatimuksiin. Tilojen ilme on valoisa, raikas ja huoliteltu. Joustava pohjaratkaisu mahdollistaa toimiston toteuttamisen joko avo- tai huonetoimistona – juuri yrityksesi tarpeiden mukaan.
Vuokralaisten käytössä on monipuoliset neuvottelutilat: kaksi 12 hengen sekä kuusi neljän hengen kokoustilaa. Lisäksi talosta löytyy uusi, 20 hengen studio, joka soveltuu erinomaisesti esimerkiksi hybriditilaisuuksiin, tapahtumiin tai kisakatsomoiksi. Westport tarjoaa myös nykyaikaisen kuntosalin sekä viihtyisät ja avarat sauna- ja kokoustilat.
Katutasossa sijaitseva ravintola Gresa tarjoilee laadukasta ja edullista lounasta sekä vastaa kokoustarjoiluista Westportin toimistoihin ja neuvottelutiloihin.
Vapautuu
Heti
Rakennusvuosi
1998
Kerros
6 / 9
Energiatehokkuusluokka
Ei lain edellyttämää energiatodistusta
Näkyvällä paikalla
Hissi
Ota yhteyttä
ScanReal Oy LKV
Opus Business Park
Hitsaajankatu 24
00810 Helsinki
info@scanreal.fi
Puh:
Näytä puhelinnumero
020 730 8830
Sopivat toimitilat yhdellä otolla!
Kartoitamme toimitilatarpeesi ja etsimme yrityksellesi parhaiten sopivat vapaat toimitilat. Koska vuokranantajat maksavat palvelumme, on tämä yrityksellesi veloituksetonta.
OTA YHTEYTTÄ - SOVI NÄYTTÖ!
Kaikki kohteemme eivät ole netissä, kerro tilatarpeesi niin kartoitamme vaihtoehdot.
Palvelumme on tilanhakijalle ilmainen
Pyydä lisätietoa
