Vuokrataan toimistotilat - Helsinki
Mannerheimintie 15 B, Töölö, 00260 Helsinki #10851664
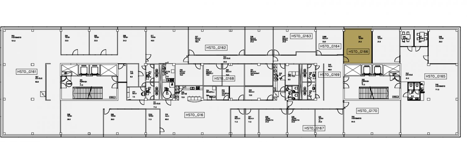
Vuokrataan upealla sijainnilla keskustan kupeessa, puistomaisessa miljöössä Töölönlahden rannalla toimistotilaa 32.5 m2, jossa keittiö yhteiskäytössä. Lähialueella paljon lounaspaikkoja ja hyvät liikenneyhteydet.
Lisätiedot ja kohde-esittelyt 020 7290 710, lisää kohteita premises.fi
Kohteella ei ole lain edellyttämää energiatodistusta tai energialuokka ei tiedossa.Kerros: 2
Osoite
Mannerheimintie 15 B, 00260 Helsinki
Tilatyyppi
Toimistotilaa
32,5 m2
Ota yhteyttä
CRE PREMISES
Puh. Näytä puhelinnumero 020 7290 710
Vantaankoskentie 14
01670 VANTAA
Pyydä lisätietoa
