Vuokrataan toimistotilat - Helsinki
Tietokuja 2, Munkkiniemi, 00330 Helsinki #10851639
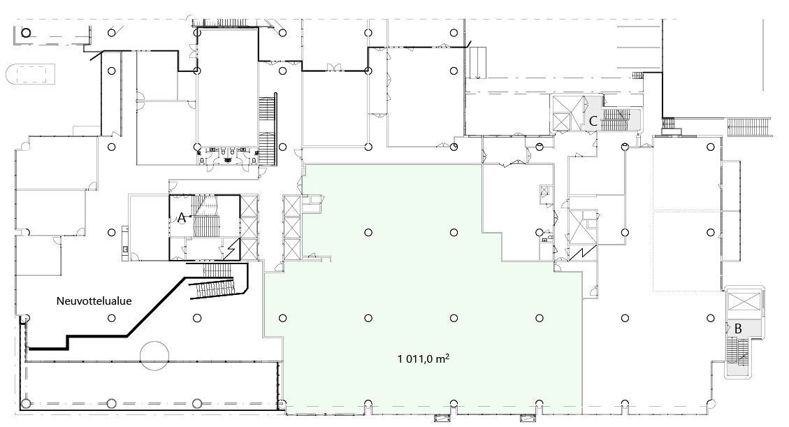
Valoisa toimistotila, josta näkymät kiinteistön eteläpuolelle.
Digitaalisten ärsykkeiden valtaamas- ta maailmasta on raivattu tila, jossa luonto ja ihmiset kohtaavat. Bloomsvillessä yksilöiden ja yhteisöjen hyvinvointi on viritetty huippuunsa: työn, liikunnan ja leikin ohella tiloja on omistettu luovuudelle, rauhoit- tumiselle sekä merkityksellisille kohtaamisille, jotka tuottavat hyvää mieltä ja oloa. Bloomsville on oma pieni kylänsä, vehreyttä pursuava puistoympäristö ja elävä yhteisö saman katon alla.
Bloomsvillen suosittuun ravintolaan tullaan syömään matkankin päästä, ja lounaan lisäksi sieltä saa helpotus- ta aamu- ja välipalanälkään. Suomen upein kuntosali varmistaa sen, ettei treenin tekeminen jää puitteista kiinni ja myös kaikki lähipalvelut, kuten kaupat, terveyskeskuspalvelut ja koulut ovat vieressä. Merellinen ympäristö on rauhaisa, mutta kiin- teistön vaikuttava koko varmistaa näkyvyyden Turunväylälle asti.
Lisätiedot kohteesta sekä kohde-esittelyt saat numerosta:020 7290 710, sekä lisää kohteita osoitteesta:www.premises.fi
Kohteella ei ole lain edellyttämää energiatodistusta.Kerros: 2
CRE PREMISES
Puh. Näytä puhelinnumero 020 7290 710
Vantaankoskentie 14
01670 VANTAA
