Vuokrataan toimistotilat, liiketilat - Helsinki
Mäkelänkatu 87, Käpylä, 00610 Helsinki #10851626
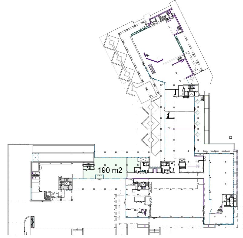
Vuokrataan liike/toimistotilaa 190m2.
Mäkelänkatu 91 rakennettiin 1980-luvulla Amer-yhtymän pääkonttoriksi, mikä näkyy laadukkaina materiaaleina, toimivina tiloina sekä persoonallisena ilmeenä. Rakennuksessa on lukuisia upeita tiloja harkittuine yksityiskohtineen, kuten näyttävä ja valoisa aulatila sekä laadukkaita neuvottelutiloja.
Lisätiedot ja kohde-esittelyt 020 7290 710, lisää kohteita www.premises.fi.
Kohteella ei ole lain edellyttämää energiatodistusta tai energialuokka ei tiedossa.Kerros: katutaso
Osoite
Mäkelänkatu 87, 00610 Helsinki
Tilatyyppi
Toimistotilaa
190 m2
Liiketilaa
190 m2
Yhteensä
190 m2
Kulkuyhteydet
Mäkelänkatu 91 sijaitsee tunnetulla ja näkyvällä paikalla Mäkelänkadun ja Koskelantien risteyksessä. Sijainti keskeisten väylien risteyksessä mahdollistaa sujuvan liikkumisen Helsingin keskustaan, eri puolille pääkaupunkiseutua ja kauemmaskin. Julkiset liikenneyhteydet ovat erinomaiset: aivan talon vieressä sijaitsee useiden Helsingin sisäisten ja seutulinjojen bussilinjojen pysäkit. Myös raitiovaunupysäkki on lähellä. Pasilan juna-asemalle on noin kaksi kilometriä, joten eri puolille Suomea pääsee liikkumaan sujuvasti. Matka-aika keskustaan alle 20 min. Bussien liikennöintiväli ruuhka-aikaan n. 2 min.
Ota yhteyttä
CRE PREMISES
Puh. Näytä puhelinnumero 020 7290 710
Vantaankoskentie 14
01670 VANTAA
Pyydä lisätietoa
