Vuokrataan liiketilat, näyttelytilat, tuotantotilat, työtilat - Pirkkala
Autokeskuksentie 12, Linnakallio, 33960 Pirkkala #10851617
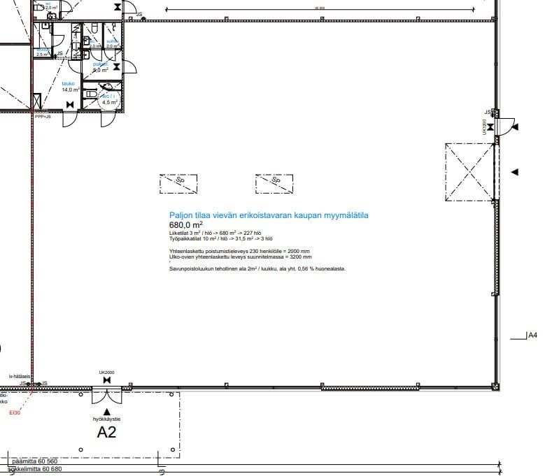
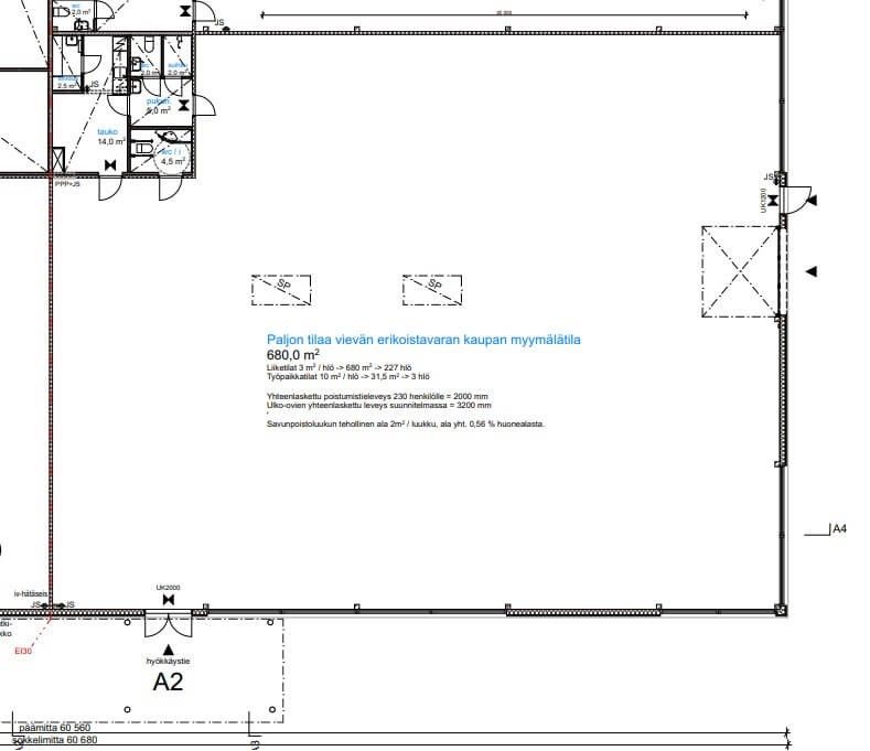
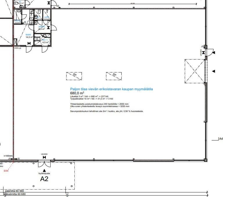
Vuokrataan liike-/toimitilaa 735 m²
Vapautumassa vuokrattavaksi 1.5.2026 alkaen näyttävä liiketila. Toimitila on katutasossa ja se sisältää pienet sosiaalitilat. Tilassa on nosto-ovi sekä erillinen sisäänkäynti. Kohteella on pihatilaa runsaasti. Toimitila soveltuu hyvin showroom/liiketilakäyttöön, varastoksi tai pientuotannon käyttöön.
Lisätiedot Harri Talvitie p.041 314 7463, harri.talvitie@rhg.fi
Lisää kohteita www.rhg.fi
Osoite
Autokeskuksentie 12, 33960 Pirkkala
Tilatyyppi
Liiketilaa
735 m2
Näyttelytilaa
735 m2
Tuotantotilaa
735 m2
Työtilaa
735 m2
Yhteensä
735 m2
Vapautuu
Kysy
Huoneiden lukumäärä
1
Energiatehokkuusluokka
Ei lain edellyttämää energiatodistusta
Ota yhteyttä
RHG Real Estate
Hämeenkatu 2 B20, 20500 Turku
Harri Talvitie
Toimitilavälittäjä
Näytä puhelinnumero
0413147463
Pyydä lisätietoa
