Vuokrataan toimistotilat, tuotantotilat, varastotilat - Pirkkala
Jasperintie 334 A, Vähä-Vaitti, 33960 Pirkkala #10851610
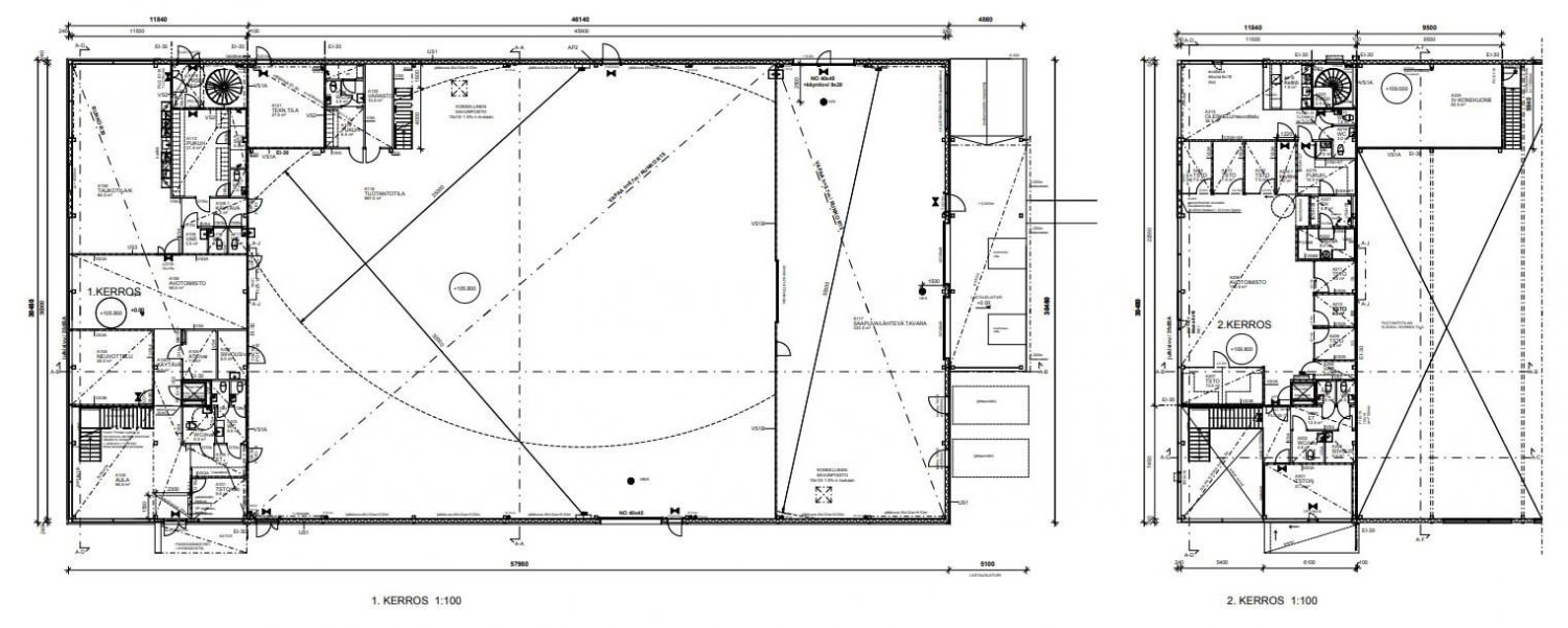
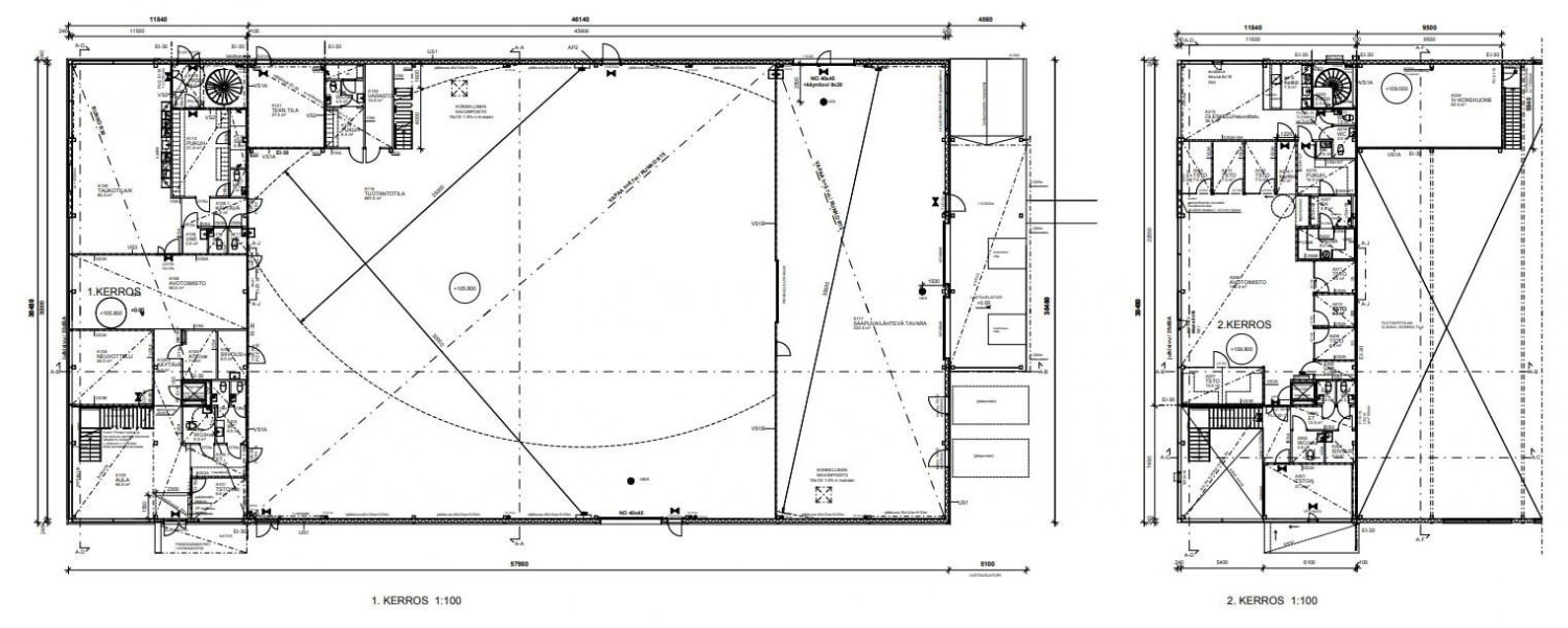
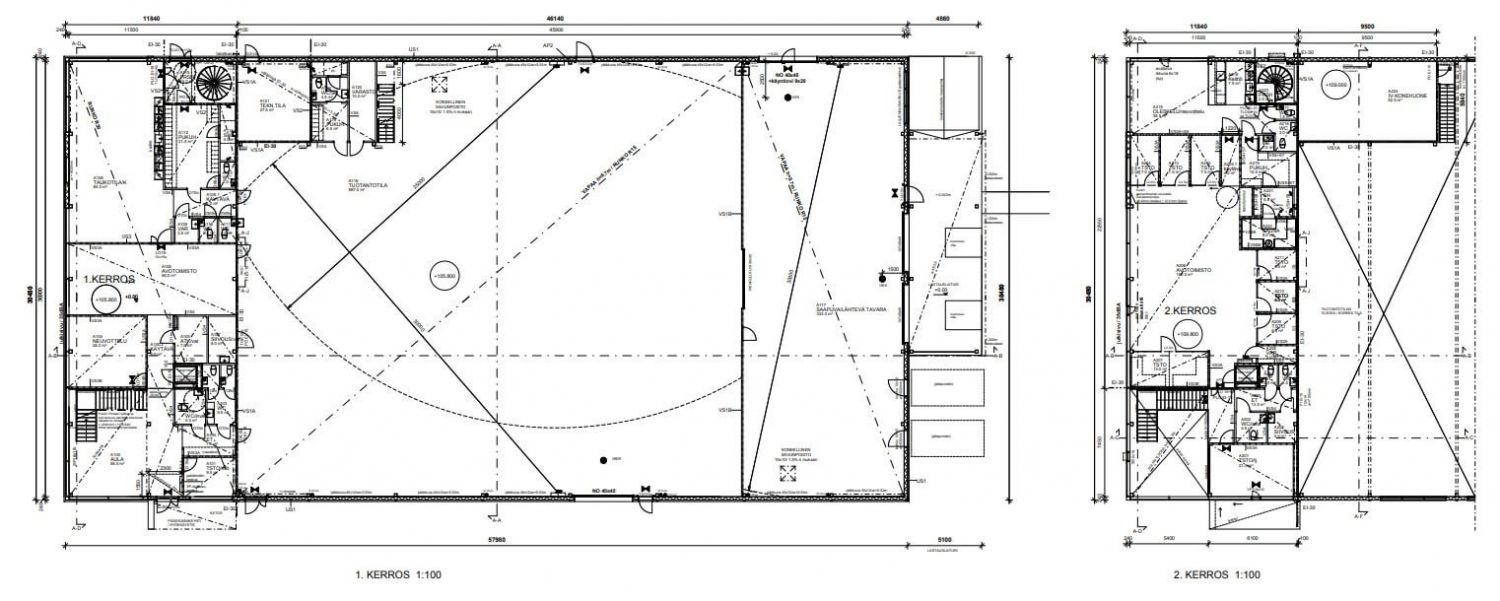
Vuokrataan hallitilaa toimistolla 2143 m²
Etsitkö kasvua tukevaa toimitilaa erinomaisella sijainnilla? Kesällä 2026 vapautumassa vuokrattavaksi selkeää ja korkeaa hallitilaa näkyvällä paikalla, suoraan ohitustien varrella. Kiinteistölle on helppo saavutettavuus joka puolelta kaupunkia.
Vuokrattavan toimitilan kokonaispinta-ala on 2143 m², josta noin 1450 m² on korkeaa ja avaraa hallitilaa. Toimistoa löytyy kahdessa kerroksessa yhteensä noin 683 m² – tilavat huoneet isoilla ikkunoilla tarjoavat valoisan ja viihtyisän työympäristön.
Hallissa on kaksi nosto-ovea sekä lastauslaituri, jossa kaksi kuormaussiltaa helpottavat tavaraliikennettä. Tilat on varustettu pukuhuoneilla sekä hallin että toimiston puolella – lisäksi käytössä on oma sauna ja edustustila.
Kohteella on hyvin parkkipaikkoja saatavilla.
Lisätiedot Harri Talvitie p.041 314 7463, harri.talvitie@rhg.fi
Lisää kohteita www.rhg.fi
RHG Real Estate
Hämeenkatu 2 B20, 20500 Turku
Harri Talvitie
Toimitilavälittäjä
Näytä puhelinnumero
0413147463
