Vuokrataan muut tilat - Helsinki
Aleksanterinkatu 11, 00100 Helsinki #10851541
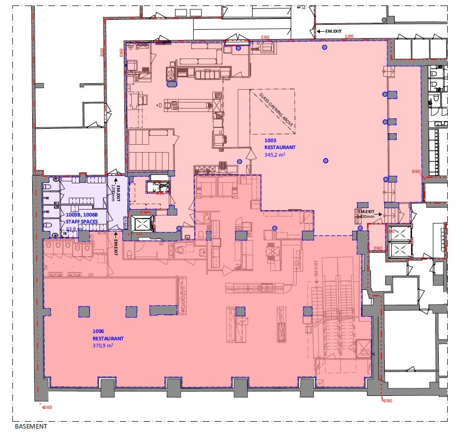
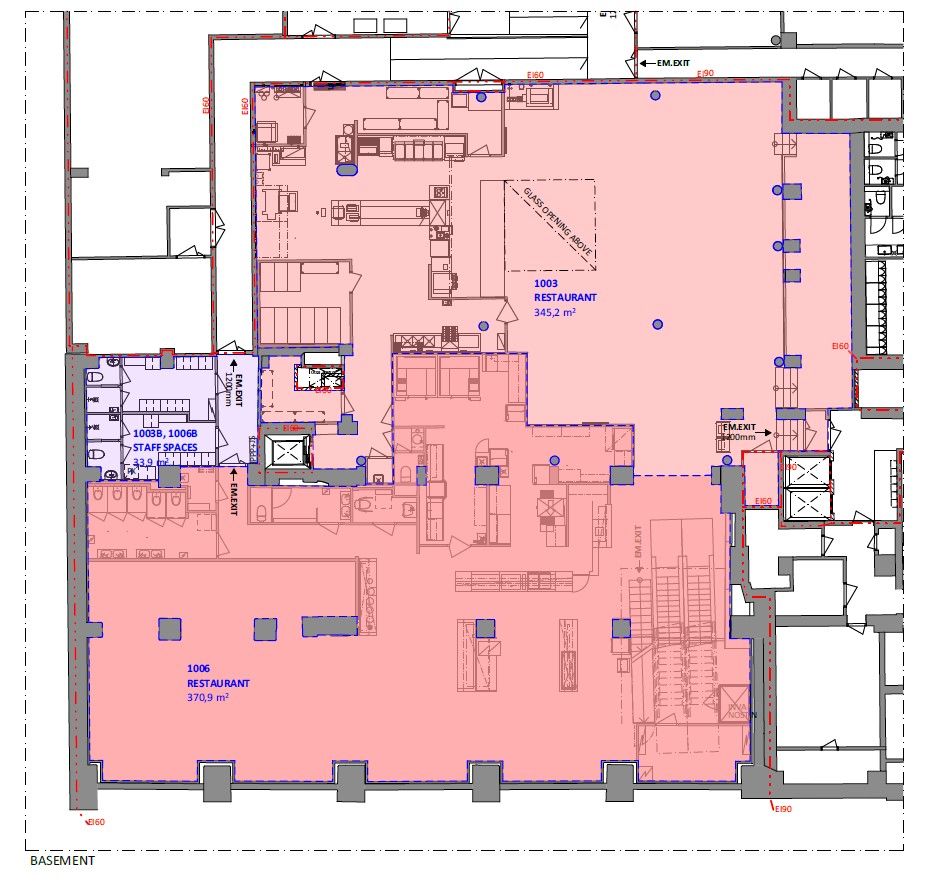
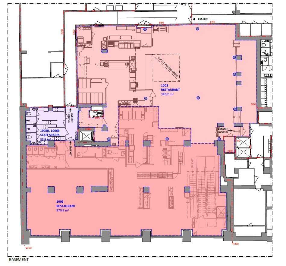
Vuokrattavana kellarikerroksen 750 m2 ravintolatila huippusijainnilla Helsingin keskustassa, Aleksanterinkadun varrella! Kyseessä on primepaikka, jossa toimii tällä hetkellä ravintolaketjut Burger King ja Rax.
Tila on jaettu kahteen osaan: 345 m² ja 371 m², jotka voidaan vuokrata erikseen tai yhdessä.
Erinomainen tilaisuus liiketoiminnalle vilkkaalla sijainnilla, missä asiakasvirrat ovat taattuja. Tila on valmis ravintolakäyttöön.
Liiketilojen vuokraus ja tiedustelut: C&W Retail Services, puh. 0108368400, retail.fi@cushwake.com.
The First on primepaikalla, Helsingin ydinkeskustassa, Aleksin ja Kluuvin kulmassa sijaitseva upea ja arvokas rakennus, joka tarjoaa huippuluokan toimitiloja. Tämä historiallinen toimistokiinteistö on Suomen vanhin betonirakenteinen liiketalo ja se on valmistunut täydellisestä saneerauksesta vuonna 2020. Sen toimitilat vastaavat täydellisesti nykytoimistovuokralaisen vaatimuksiin. Tilat ovat avaria, valoisia sekä erittäin muuntautumiskelpoisia.
Saneerauksen yhteydessä uudistettiin talon pääaula, joka avautuu suurin lasiseinin Kluuvikadun suuntaan. Sisäänkäynti on erityisen edustava. Rakennuksen palvelut ovat monipuoliset, kattosaunasta ensiluokkaisiin kokoustiloihin ja avaraan sisäpihaan, jossa voi vaikkapa nauttia lounasta. Talon katutasossa on rakennusta elävöittäviä liiketiloja ja ympäristössä runsaasti ravintoloita, myymälöitä sekä hotelleja. Talossa on pyöräparkki sekä suihku- ja pukuhuonetilat kellarikerroksessa. Toimistot sijaitsevat kerroksissa 2.-7. ja tilat ovat räätälöitävissä vuokralaisen toiveiden mukaan ja ne toimivat hyvin sekä huonetoimistona että tehokkaana avokonttorina.
