Vuokrataan toimistotilat - Helsinki
Kustinpolku 9, 00240 Helsinki #10851539
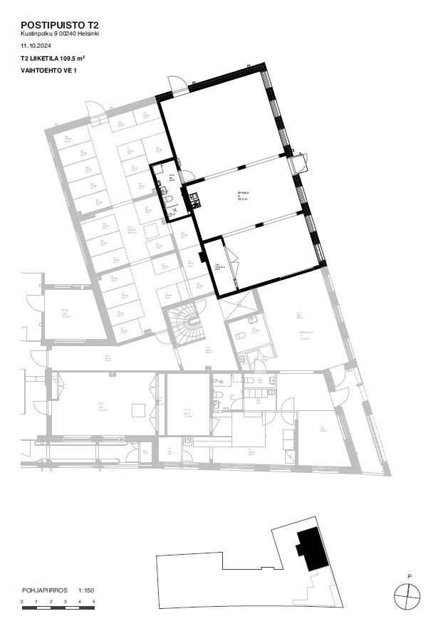
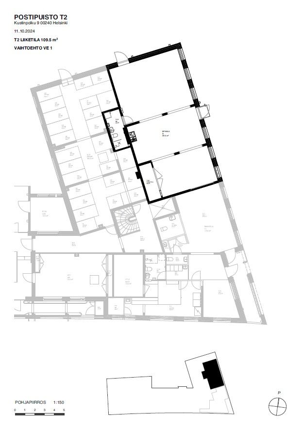
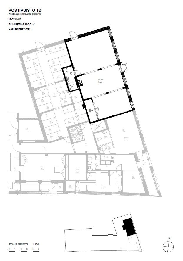
Vuokrattavana katutason 117 m2 toimistotila asuinrakennuksen kivijalasta Helsingin Postipuistossa. Rakennus valmistui kesällä 2025. Tila on mahdollista jakaa kahteen osaan, jolloin tilan kooksi tulee n. 50 m2. Liiketila tarjoaa erinomaiset mahdollisuudet uudella ja kehittyvällä alueella, missä lähellä asuvien asukkaiden ja ohikulkijoiden määrä on jatkuvassa kasvussa. Kuvissa tilojen pohjakuva ja havainnekuva talosta.
Liiketilojen vuokraus ja tiedustelut: C&W Retail Services, puh. 010 836 8418, retail.fi@cushwake.com.
Uudiskohde Postipuistossa. Alueelta on erinomaiset liikenneyhteydet: Ilmalan juna-asema sekä sujuvat bussi- ja raitiovaunuyhteydet Helsingin keskustaan.
