Vuokrataan toimistotilat - Tampere
Kelloportinkatu 1 B TAMPERE, 33100 Tampere #10851535
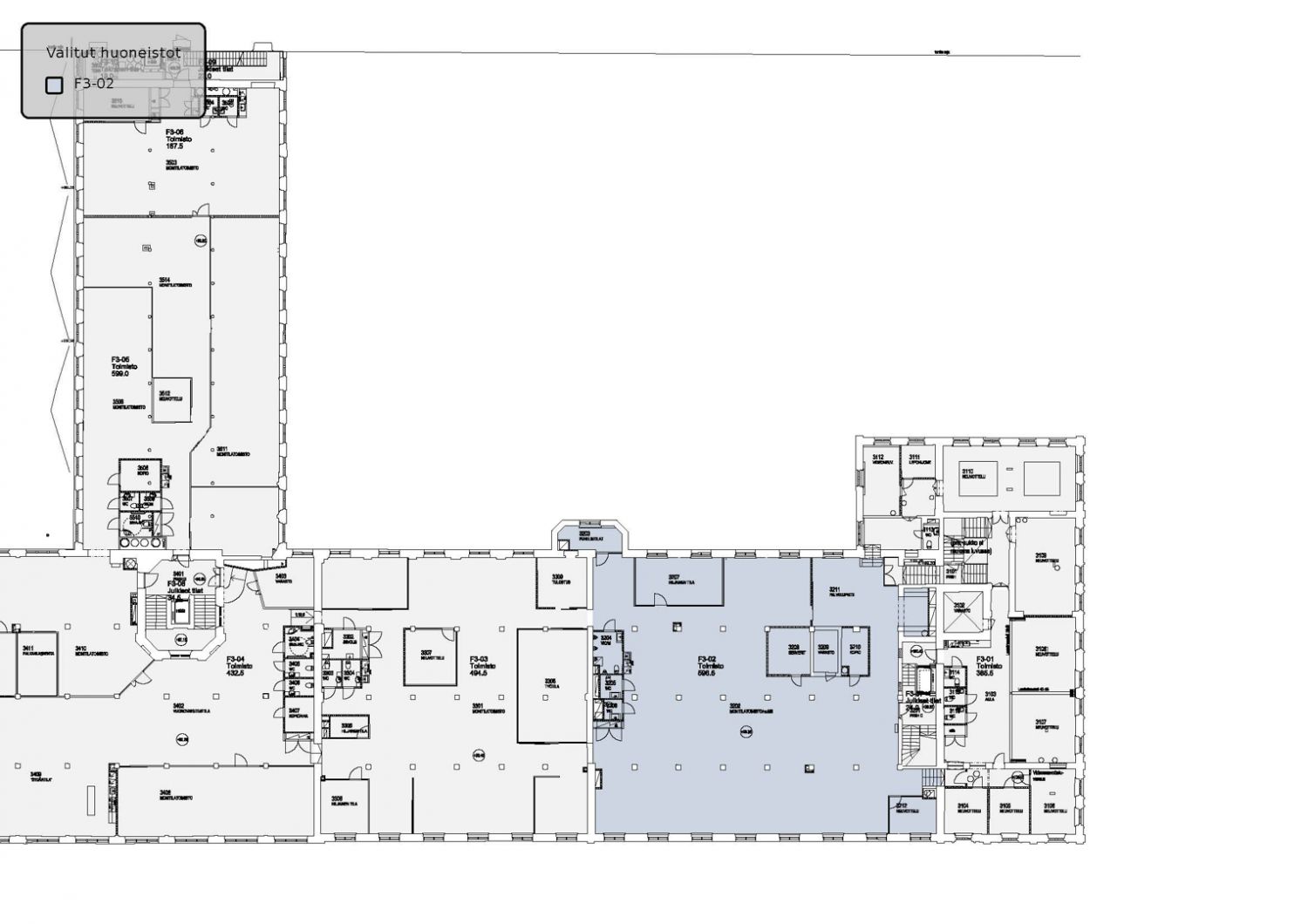
Tampereen Kelloportinkatu 1:stä vuokrattavana nykyaikainen 3. kerroksen toimistotila 596,50 m2. Tampellan vanha pellavatehdas sijaitsee ydinkeskustassa, Tammerkosken rannalla. Kiinteistö täysin saneerattu v. 2017. Korkeatasoisen kohteen ominaisuuksia ovat mm. korkea huonekorkeus ja isot ikkunat. Kiinteistössä toimii ravintola Tampella sekä vuokralaisille tarjolla hyvät pukuhuonetilat.
Koskitammi on ainutlaatuinen pala tamperelaista teollisuushistoriaa. 1800-luvulla rakennetut tiiliseinät on herätetty henkiin nykyaikaisina toimistoina.
Sijainti Tampereen keskustassa on saavutettavuudeltaan erinomainen, kuljet sitten junalla, bussilla tai omalla autolla. Kiinteistössä palvelee myös laadukas Ravintola Tampella. Kiinteistöstä löytyy myös yhteiset suihku- ja pukuhuonetilat.
Kiinteistö Oy Koskitammi, Tampellan vanha 1850-luvulla valmistunut pellavatehdas kosken varrella. Kohteessa on tehty kattava remontti vuonna 2016, joten tilat ovat uudenveroiset.
Tampellan arvokiinteistö Koskitammi on merkittävä osa Tampereen keskustan sydäntä ja luo maamme tunnetuimman teollisen kaupunkimaiseman. Koskitammi on kulttuurihistoriallisesti arvokas ja se on asemakaavassa luokiteltu suojelukohteeksi. Saneeraustyöt talon historiaa kunnioittaen valmistuivat vuonna 2016.
Kiinteistölle on myönnetty LEED Gold-tason ympäristöluokitus.
