Vuokrataan muut tilat - Helsinki
Hämeentie 19, 00500 Helsinki #10851530
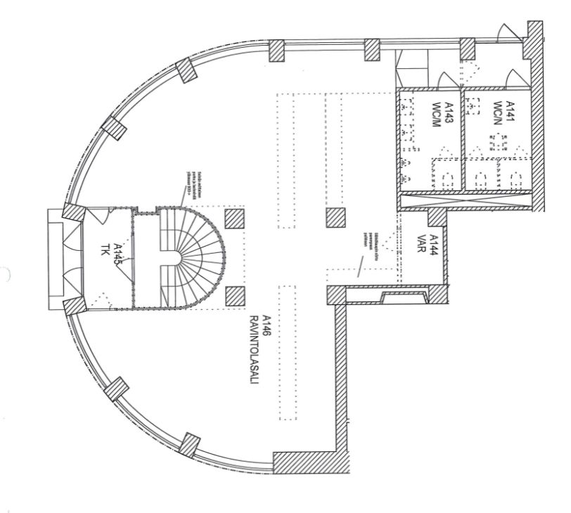
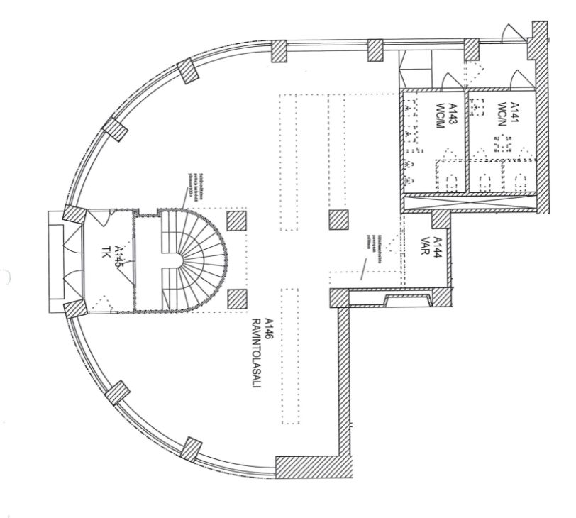
Vuokrattavana valoisa 175 m2 ravintolatila, jossa on täysi ravintolatekniikka. Tilassa toimii tällä hetkellä Sushibar + Wine. Tilaan on mahdollista liittää lisäksi kellarikerroksen 365 m² tila, jota voi hyödyntää monipuolisesti esimerkiksi: lisäasiakastilana, apukeittiönä, henkilökunnan tiloina tai varastona. Tilasta tulee tällöin 540 m2.
Sijainti Hämeentiellä tarjoaa erinomaisen näkyvyyden ja hyvät kulkuyhteydet
Liiketilojen vuokraus ja tiedustelut: C&W Retail Services, puh. 0108368400, retail.fi@cushwake.com.
Täysin saneerattu funkiskiinteistö. Väinö Vähäkallion suunnittelema rakennus on valmistunut vuonna 1933 OTK:n hallintorakennukseksi, jota on laajennettu vuonna 1964 koskien rakennuksen B-osaa.
Talo on varustettu modernilla talotekniikalla ja it-yhteyksillä; koneellinen tulo- ja poistoilmanvaihto, kulunvalvonta, jäähdytys, uudet pintamateriaalit, tasokkaat wc- ja keittiötilat sekä Cat6-tasoinen yleiskaapelointi (myös kuituyhteys). Persoonallinen kiinteistö, jossa mm. toimivat pater-hissit. Kiinteistössä mm. aulapalvelu ja täysin uudistettu lounasravintola, jonka yhteydessä catering-mahdollisuus. Erillistä sopimusta vastaan käytettävissä neuvottelutiloja, kuntosali ja suihkutilat. Myös varastotilaa vuokrattavissa.
