Vuokrataan toimistotilat - Helsinki
Tehtaankatu 27-29, 00150 Helsinki #10851516
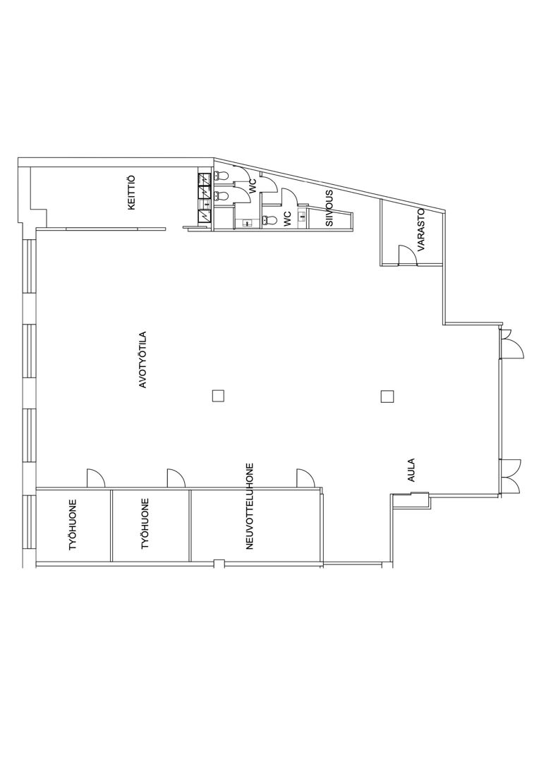
Tarjolla edustavaa ja käytännöllistä toimistotilaa 5. kerroksessa. Tilat ovat jaettavissa joustavasti noin 250 m², 300 m², 550 m² tai jopa 850 m² kokonaisuuksiksi, joten ne soveltuvat hyvin erikokoisille toimijoille. Tiloissa on korkea huonekorkeus ja runsaasti luonnonvaloa, mikä tekee työympäristöstä miellyttävän ja avaran. Valmiina on työhuoneita, neuvottelutiloja sekä sosiaalitiloja, joten tilat ovat heti käyttövalmiita. Toimistokerroksessa on käytettävissä suihkutilat, mikä tekee kohteesta erinomaisen vaihtoehdon myös pyöräileville työntekijöille. Sekä henkilö- että tavarahissit takaavat sujuvan logistiikan ja hyvän saavutettavuuden. Tilat voidaan myös muokata käyttäjän tarpeiden ja toiveiden mukaan.
Tämä kohde tarjoaa laadukkaat ja joustavat puitteet asiantuntijaorganisaatioille, suunnittelu- tai IT-toimistoille sekä muille toimistopohjaisille toiminnoille.
Mestaritalo. Vanha teollisuusrakennus, joka on muutettu toimistokäyttöön. Vuokralaismixi koostuu lähinnä luovan alan yrityksistä. Talotekniikan taso vaihtelee tilakohtaisesti. Pääsisäänkäynti on A-rapussa, jossa on 3 hissiä ja edustava sisäänkäynti. D rapussa ei ole hissiä.
