Vuokrataan toimistotilat - Helsinki
Fredrikinkatu 48, 00100 Helsinki #10851502
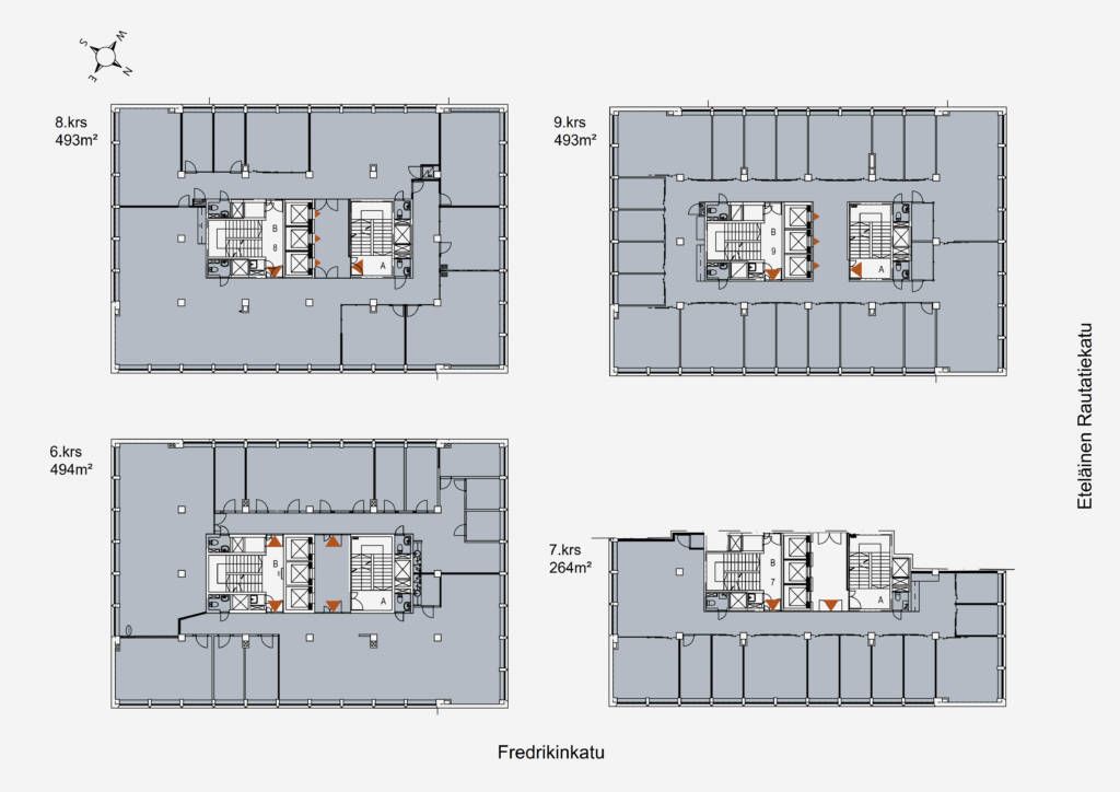
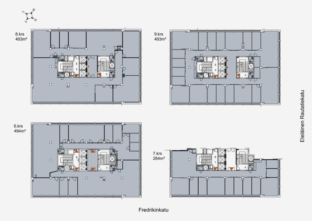
Tilat isommallekin yritykselle joka haluaa sijoittua keskelle Kamppia! Vapautumassa noin puolet kerroksesta 7. (264m2) sekä ylemmät kerrokset 8. ja 9. kokonaan. Yhteensä neliöitä noin 1250 näkymät upeat ja tilat muuntojoustavia. Tila vapautuu sopimuksen mukaan.
Vuonna 1962 rakennettu Autotalo. Hyvät palvelut, mm. Kampin kauppakeskuksen kauppa- ja ravintolapalvelut vieressä.
Toimistokerroksista on hissiyhteys autohalliin. Pyöräilijöille suihkut ja pyöräparkit. Kiinteistössä on jäähdytys puhallinkonvektoreilla.
Osoite
Fredrikinkatu 48, 00100 Helsinki
Tilatyyppi
Toimistotilaa
1250 m2
Kulkuyhteydet
Erinomaiset liikenneyhteydet. Metro- ja linja-autoaseman välittömässä läheisyydessä. Junalle n.5min kävelymatka. Raitiovaunuyhteydet Arkadiankadulta tai Mannerheimintieltä. Pysäköinti Autotalossa tai Europarkin P-Kampissa.
Vapautuu
Kysy
Rakennusvuosi
1962
Ota yhteyttä
Pyydä lisätietoa
