Vuokrataan toimistotilat - Espoo
Keilaranta 15 B, 02150 Espoo #10851495
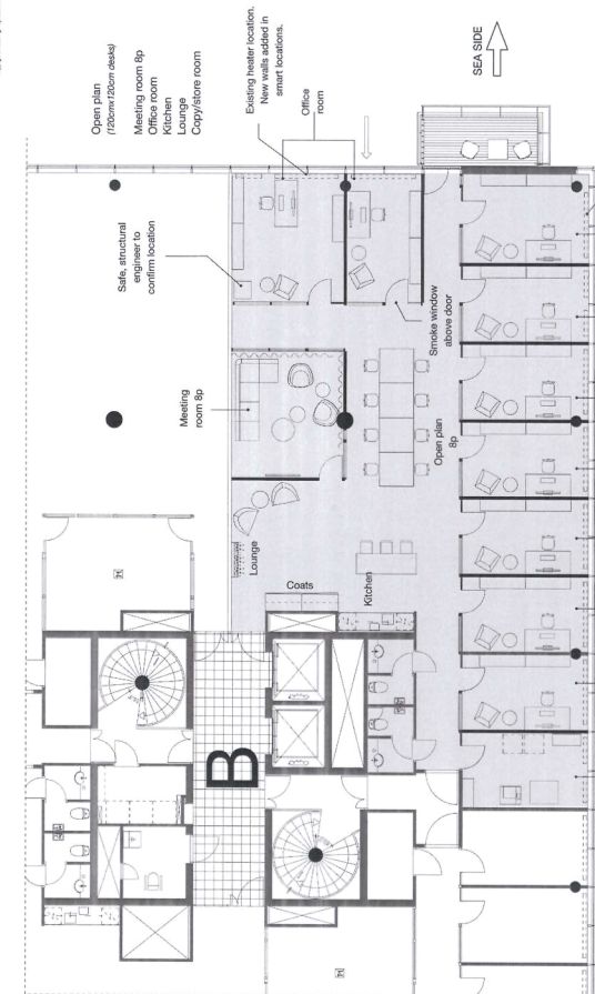
Vuokrattavana upea 246 m2 toimistotila osoitteesta Keilaranta 15 B. HTC B-talon 5. kerroksessa. Tila tarjoaa joustavat mahdollisuudet tilojen muokkaamiseen juuri tarpeidesi ja toiveidesi mukaisesti.
Sijainti: Keilaniemi on alue, joka huokuu menestystä ja ammattimaista ilmapiiriä. Tämä tila tarjoaa sinulle mahdollisuuden sijoittua yhteen alueen hienoimmista kiinteistöistä, tarjoten samalla kätevän sijainnin ja hyvät liikenneyhteydet.
Tule kokemaan tilan ainutlaatuisuus ja luo oma kehtosi menestymiselle. Ota yhteyttä ja varaa esittelyaika – tämä on mahdollisuus, jota et halua missata!
Toimisto meren äärellä. Nyt uutuutena lasi iglot terassilla jossa voit tehdä töitä ulkona vaikka syyskeli viileneekin.
Löydä yrityksellesi tukikohta Espoon Keilaniemestä, Suomen suurimmasta ja arvostetuimmasta yrityskeskittymästä. Viihtyisät tilamme sijaitsevat upeissa maisemissa meren äärellä, hyvien kulkuyhteyksien päässä. Toimistotilat ovat muunneltavissa juuri sinun tarpeidesi mukaisiksi.
HTC Waterfront Keilaniemi koostuu osoitteen Keilaranta 13-17 kolmesta talosta A-C, jotka kaikki ovat saavuttaneet kansainvälisen BREEAM-ympäristösertifikaatin Very Good- tason.
Suosittu lounasravintola, josta myös catering-palvelut, Taloa palvelee kaksi aulaa jotka auttavat vieraat perille ja toivottavat hyvää päivää. Talossa on juuri uudisteeetu freessi punttisali omilla pukuhuoneilla. Lisäksi löytyy myös suihku- ja pukuhuonetilat työmatkapyöräilijöile. Erillisveloituksella neuvotteluhuoneita katutasossa. Maanalainen pysäköintitaso sekä pihapaikoitus, runsaasti vieraspaikkoja autoille sekä venepaikkoja toimiston vuokralaisille. Sähköautojen latauspisteitä. Tietojärjestelmät ja talotekniikka edustavat alan kärkiosaamista.
Talon edustalla on myös kelluva Padel kenttä.
