Vuokrataan toimistotilat - Helsinki
Salomonkatu 17, 00100 Helsinki #10851449
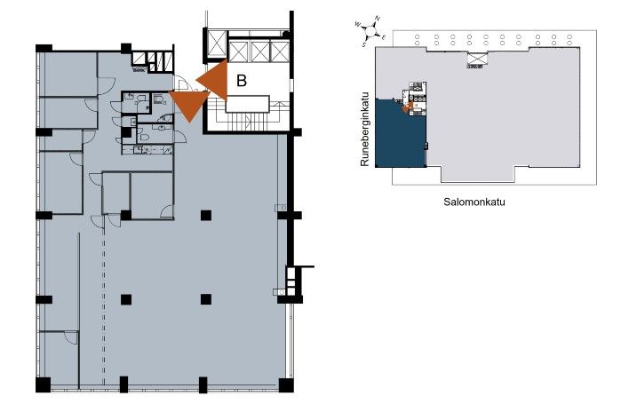
Vuokrattavana 321 m2 hyvin saavutettava toimistotila keskeisellä paikalla Helsingin Autotalossa. Remontoidaan vastaamaan uuden käyttäjän tarpeita. Sijaitsee B tornissa.
Yksi Kampin tunnetuimmista maamerkeistä; uudistunut Autotalo näkyvällä paikalla Kampin kauppakeskuksen vieressä. Perinteikäs Autotalo valmistui Kamppiin 1958. Rakennuksessa on 12 kerrosta ja kolme maanalaista kerrosta.
Kiinteistössä valmistui vuonna 2015 mittava perusparannushanke: tiloja on avarrettu ja tehty niistä käyttäjilleen avoimempia. Autotalon aulatila on uudistettu erittäin näyttäväksi. Autotalon alakerrassa on kattava ravintolamaailma.
Autotalon kokoustilat vuokrattavissa. Kiinteistössä on parkkihalli, jonka autopaikat vuokraa Europark. Pyöräilijöille on siisti, lämmin pyöräparkki sekä sosiaalitilat suihkuineen.
