Vuokrataan toimistotilat - Helsinki
Pursimiehenkatu 29-31, 00150 Helsinki #10851403
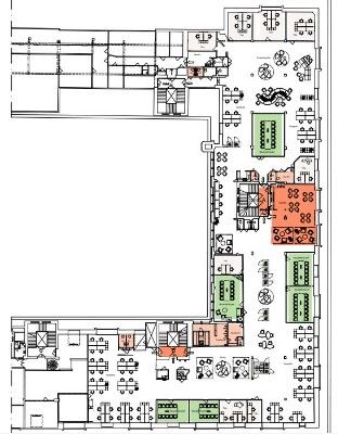
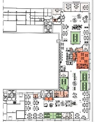
Tunnelmallinen Merikortteli on ainutlaatuinen kiinteistö merellisen Punavuoren sydämessä. Nyt vuokrattavana 6. kerroksen 586 m2 harvinaisuus. Tilaan useampia sisäänkäyntejä. Tilat odottavat betonipinnoilla uuden vuokralaisen materiaalivalintoja. Tila toimi 2023 Helsinki Design Weekin päänäyttämönä. Erinomainen sijainti Punavuoressa, suositussa dynaamisessa ja yhteisöllisessä Merikorttelissa! Alueella paljon laadukkaita ravintoloita ja kahviloita.
Merikortteli on Helsingin Punavuoressa sijaitseva ylväs historiallinen kuusikerroksinen kiinteistö, joka käsittää laajuudeltaan koko korttelin. Se on alun perin, vuonna 1920 rakennettu lähinnä teollisuustuotantoa varten ja peruskorjattu korkeatasoisiksi toimisto-, studio- ja työtiloiksi, unohtamatta säilyttää teollista jylhyyttä. Huonekorkeudet ovat ensimmäisessä kerroksessa lähes 5 m ja ylemmissä kerroksissakin 3-4 m.
Merikorttelin tiloissa toimii korkeaprofiilisia asiantuntijayrityksiä. Vuokralaiselle räätälöidään modernit ja edustavat toimitilat yksilöllisten tarpeiden mukaisesti. Merikorttelin selkeä rakenne ja kerrosten 18 metrinen leveys yhdistettynä suureen huonekorkeuteen tarjoaa lähes rajattomat muuntelumahdollisuudet. Korkeista, luonnonvaloa tulvivista ikkunoista voi ihailla upeita ympäröiviä maisemia: kauniita historiallisia rakennuksia ja Punavuoren eloisaa katukuvaa.
Useita tavarahissejä, lastauslaiturit, pyöräsuoja. Pysäköintitilaa tarjolla korttelin omassa parkkihallissa sekä läheisissä pysäköintilaitoksissa.
