Vuokrataan toimistotilat - Helsinki
John Stenbergin ranta 2, 00530 Helsinki #10851369
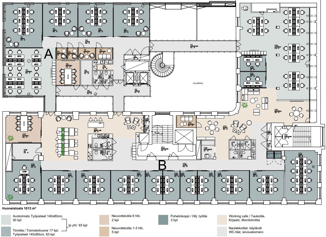
Vuokrattavana 7. kerroksen 1013 m2 toimistotila upeilla näkymillä Kaisaniemen ja Eläintarhanlahden suuntiin aivan Pitkänsillan kainalossa. Jokaisen kerroksen tilankoko on reilusti yli 1000 m², ja se voidaan kätevästi jakaa noin 300 m² ja 730 m² osuuksiin kahdelle eri käyttäjälle, tarjoten joustavuutta erilaisiin tarpeisiin.
John Stenbergin ranta 2 – John S. on hieno punatiilinen talo aivan Pitkänsillan kupeessa, Helsingin Hakaniemessä. Talo toimi pitkään Wärtsilän pääkonttorina, ja nyt siitä on rakentunut upea monen käyttäjän toimistotalo. Kiinteistö koostuu kahdesta osasta. Vanhempi puoli on rakennettu vuonna 1938, ja se on Museoviraston suojelema. Kiinteistössä tehtiin 2019 yleisten tilojen remontti, jossa uudistettiin talon ilmettä ja henkeä.
John Stenbergin ranta 2 on jykevä toimistotalo, joka tarjoaa yrityksille modernit tilat erinomaisten liikenneyhteyksien varrelta. Lähellä on monipuoliset palvelut, ja talon omatkin palvelut ovat ensiluokkaiset. Aulapalvelun lisäksi talossa on oma henkilöstöravintola, vuokrattavia neuvottelutiloja sekä komeat edustustilat. Kiinteistössä on myös kuntosali, parkkihalli ja sisäpaikkoja pyörille.
