Vuokrataan liiketilat - Lappeenranta
Brahenkatu 3-7 LAPPEENRANTA, 53100 Lappeenranta #10851362
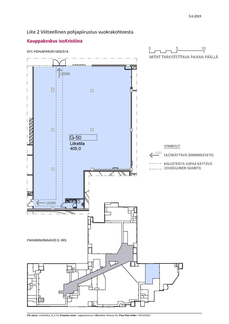
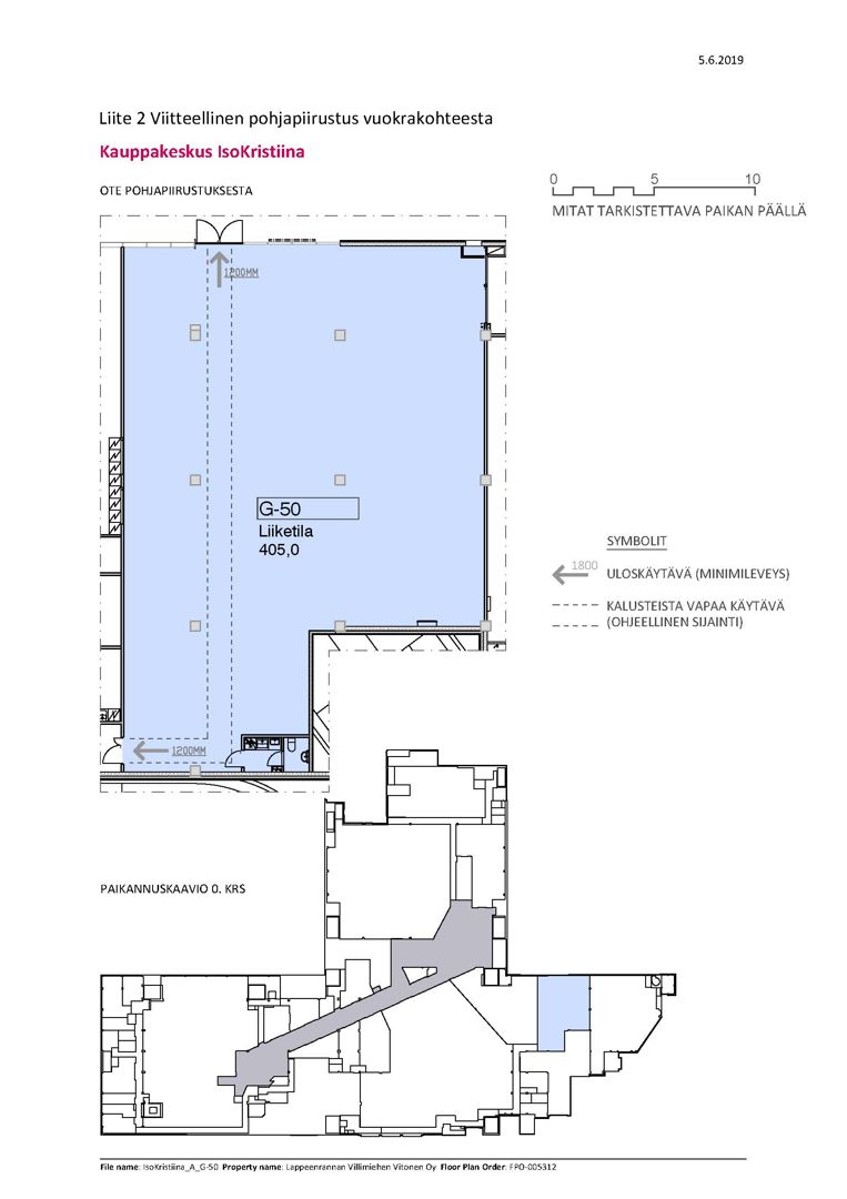
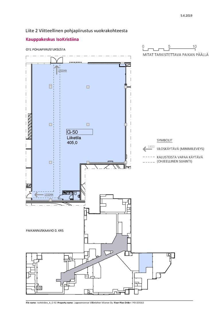
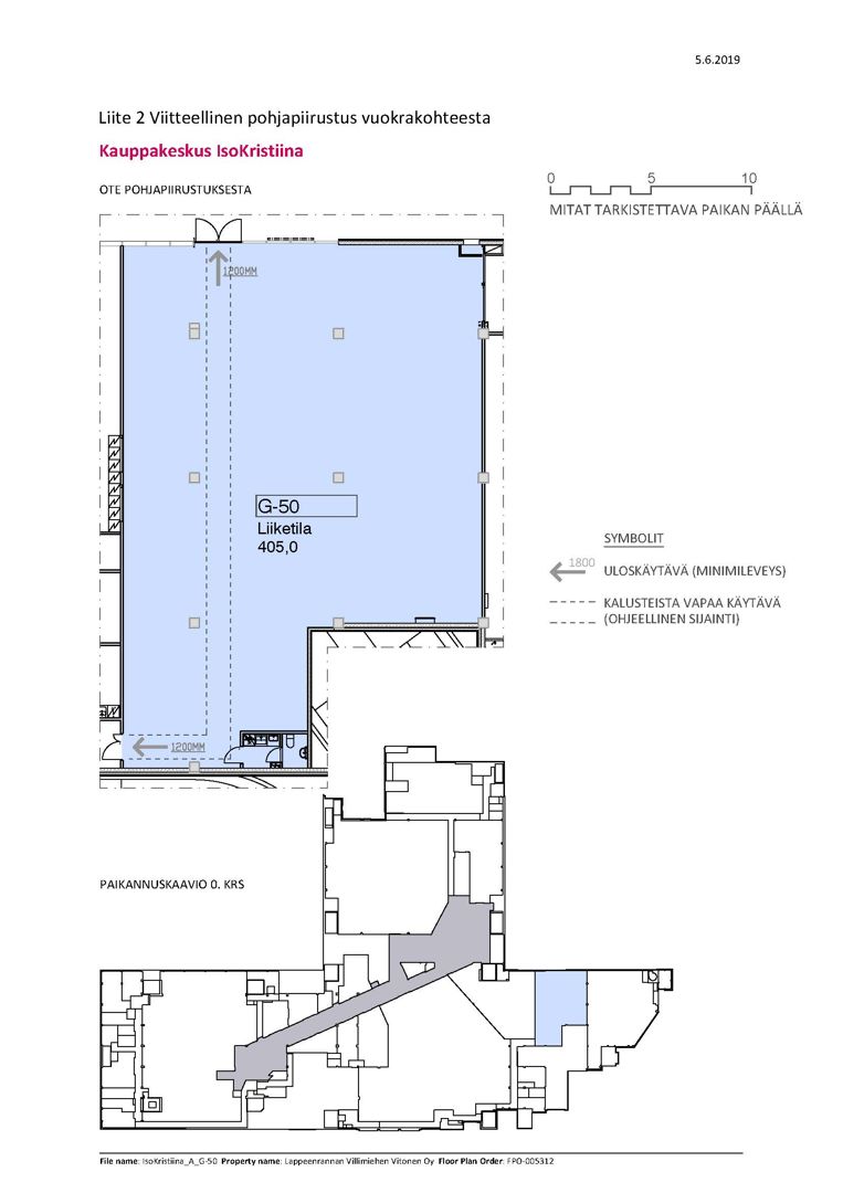
Vuokrattavana katutason liiketila (379 m²) Porin IsoKristiina-kauppakeskuksesta. Tila sopii erinomaisesti monenlaiseen liiketoimintaan ja tarjoaa loistavan mahdollisuuden näkyvyyteen kauppakeskuksen vilkkaassa ympäristössä.
IsoKristiina on suosittu kauppakeskus Porin keskustassa, jossa on runsaasti päivittäistä asiakasvirtaa sekä monipuolisia palveluja. Erinomainen sijainti takaa hyvät liikenneyhteydet ja parkkitilat.
Liiketilojen vuokraus ja tiedustelut: C&W Retail Services, puh. 010 836 8418, retail.fi@cushwake.com.
Kauppakeskus IsoKristiina sijaitsee erinomaisella paikalla Lappeenrannan ydinkeskustassa ja se on viihtyisä kaupunkikeskustan ajanviettopaikka. IsoKristiinassa on laadukkaat päivittäistavarakaupat, monipuolinen erikoiskaupan tarjonta ja runsaasti erilaisia palveluita, kuten elokuvateatteri ja kuntosali. IsoKristiinan erikoisuus on, että kauppakeskuksen sisälle sijoittuu kokonaisuudessaan Lappeenrannan kaupunginteatteri. Kauppakeskus, teatteri ja hotelli muodostavat ainutlaatuisen ja houkuttelevan kokonaisuuden niin paikallisille kuin turisteillekin. Kauppakeskuksen perusteellinen uudistus- ja laajennushanke valmistui syksyllä 2015. Liikkeitä 70, kävijöitä 4,5 milj. Ankkuriyrityksiä: Sokos, K-Supermarket, S-Market, Alko, Tokmanni, Hotelli Lappee, Terveystalo, Finnkino.
