Vuokrataan toimistotilat - Espoo
Bertel Jungin aukio 3 D-Talo, 02600 Espoo #10851356
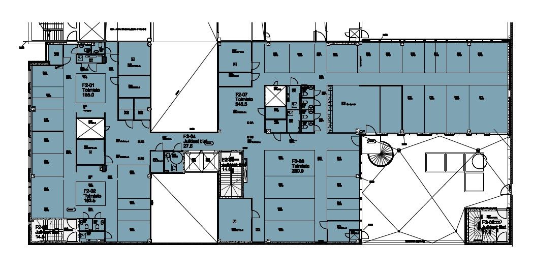
Tarjolla vuokralle moderni ja valoisa toimistotila Espoon Leppävaarassa, Alberga Business Parkissa. Tämä koko 2. kerroksen toimisto tarjoaa 920 m² tilaa. Toimistotila on avara ja moderni, ja se tarjoaa viihtyisän ja toimivan työympäristön yrityksellesi. Sijainti Leppävaarassa takaa hyvät kulkuyhteydet ja monipuoliset palvelut aivan lähettyvillä.
Alberga Business Parkista löytyy vuokralaiselle kaikki tarvittavat palvelut kuten; aulapalvelu, lounasravintola, kokoustilat, edustustilat ja sauna.
Modernia ja laadukasta toimistotilaa Alberga Business Parkin D-talossa. Alberga Business Park on viihtyisä ja moderni viiden talon kokonaisuus. D-talossa on tarjolla modernia toimistotilaa hyvin eri tarpeisiin; kokonainen kerros tai eri kokoisia pienempiä tiloja.
Sijainti Kehä I:n varrella, kauppakeskus Sellon vieressä takaa loistavat julkiset kulkuyhteydet sekä monipuolisen palvelutarjonnan.
