Vuokrataan toimistotilat - Espoo
Koskelontie 17 B, 02920 Espoo #10851351
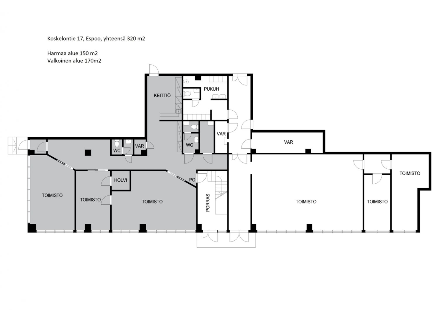
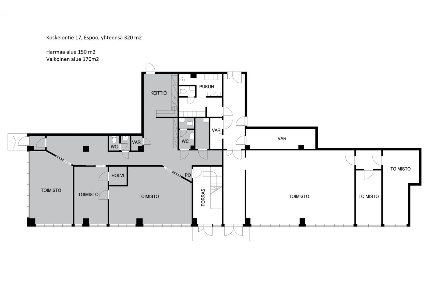
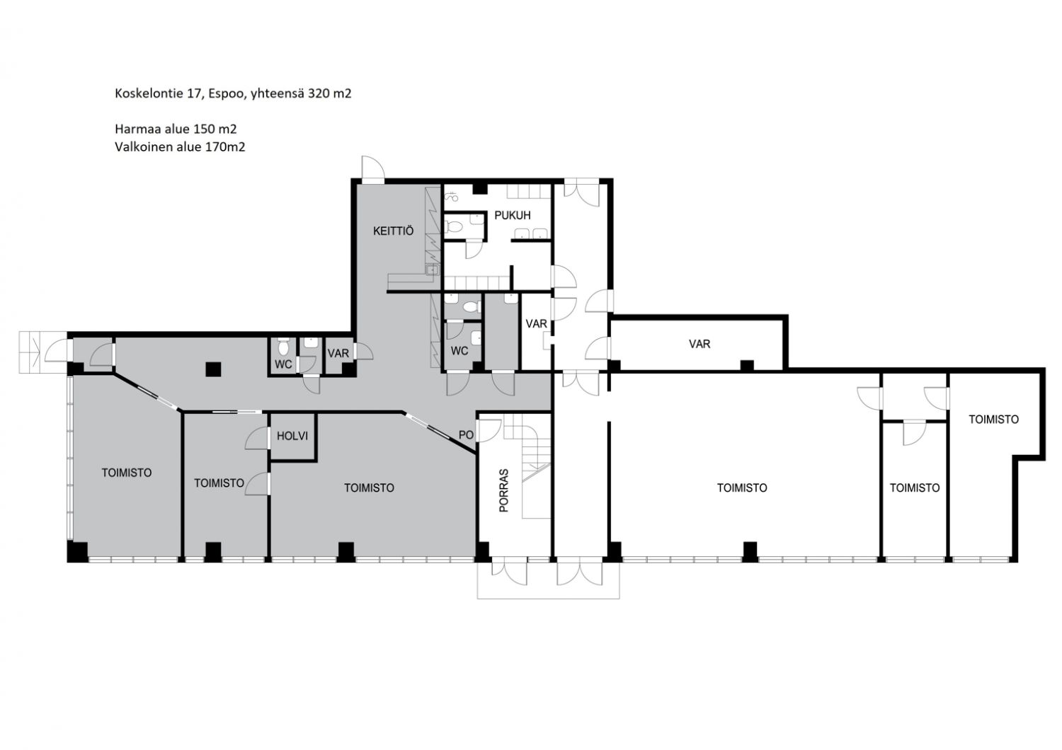
Vuokrattavana toimistotilaa Espoon Koskelossa. Toimistosta ikkunat Koskelontielle, jaettavissa. Lisäksi 45 m² varasto. Autopaikkoja suoraan oven edessä. Tilat remontoitu pääosin viimeisen 10 vuoden aikana. Kaikissa tiloissa omat wc:t. Vuokrataso voi tarvittaessa olla hyvinkin edullinen.
Monikäyttöistä hallitilaa ja siistiä toimistoa näkyvällä paikalla Kehä III vieressä Espoon Koskelossa. Kiinteistössä on kaksi päähallia ja lisäksi toimistotilaa kahdessa kerroksessa. Suurimpana käyttäjänä Byggmaxin myymälä. Suuret piha alueet ja loistava näkyvyys Kehä III suuntaan.
Osoite
Koskelontie 17 B, 02920 Espoo
Tilatyyppi
Toimistotilaa
347 m2
Kulkuyhteydet
Bussit 77 m päässä: 236V, 435, 566, 582K, 582KB, juna-asemalle 9 km, lentokentälle 18 km.
Vapautuu
Kysy
Ota yhteyttä
Pyydä lisätietoa
