Vuokrataan toimistotilat - Helsinki
Runeberginkatu 5, 00100 Helsinki #10851333
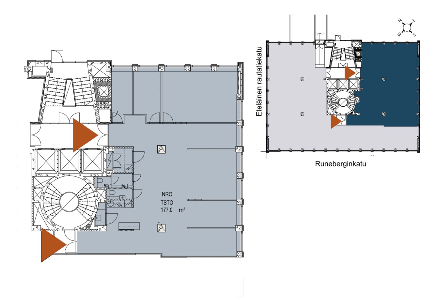
Ihana muuttovalmis 5. kerroksen toimisto keskellä Kamppia, avotilaa ja huoneita. Toimistokerroksista on hissiyhteys autohalliin. Pyöräilijöille pyöräparkit ja suihkutilat. Kiinteistössä on jäähdytys puhallinkonvektoreilla.
Kiinteistössä on tehty julkisivun ja yleisten tilojen kunnostustöitä kunnioittaen talon henkeä ja arkkitehtuuria.
Autotalokorttelin Runskivuori-toimistotalo sijaitsee näyttävällä paikalla Kampissa. Runskivuori on valmistunut perinteikkääseen Autotalokortteliin vuonna 1958. Rakennuksessa on 12 kerrosta ja kolme maanalaista kerrosta. Autotalokortteli on käynyt läpi perusteellisen peruskorjauksen ja parannushankkeen, jossa tiloja on avarrettu ja tehty niistä käyttäjilleen avoimempia.
Yksityisautoille on maanalaista pysäköintitilaa korttelin omassa autohallissa. Toimistokerroksista on hissiyhteys autohalliin. Pyöräilijöille pyöräparkit ja suihkutilat. Kiinteistössä on jäähdytys puhallinkonvektoreilla. Runskivuoren katutasossa on monipuolista liiketilaa. Ylemmissä kerroksissa on toimistotilaa ja neuvottelutiloja. Talossa on kahvila ja mahdollisuus mm. catering-palveluihin.
Metroasema 200 m
Raitiovaunupysäkki 100 m
Bussipysäkki 100 m
Juna-asema 700 m
