Vuokrataan toimistotilat - Espoo
Karaportti 5, 02610 Espoo #10851308
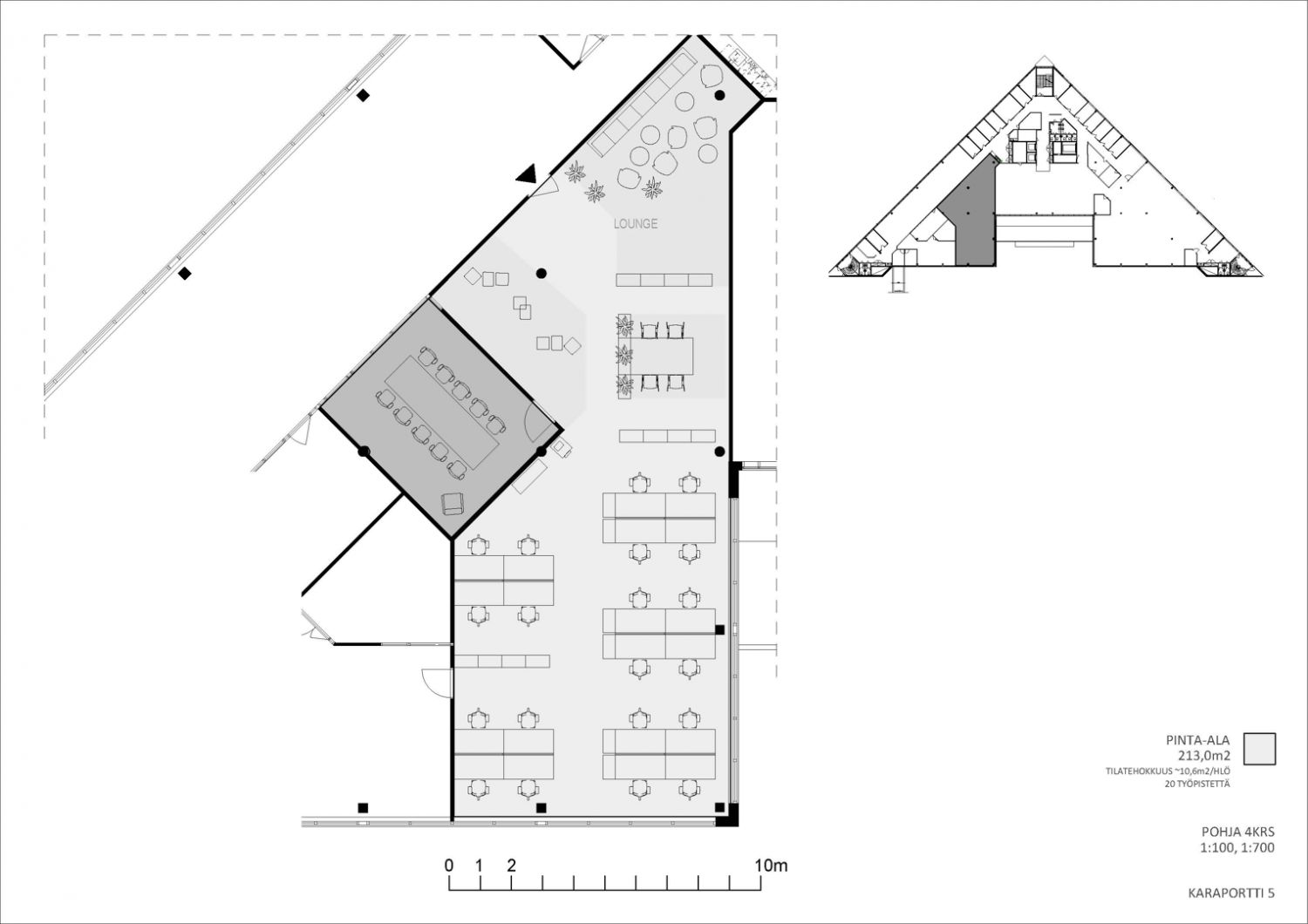
Vapaa kolmannen kerroksen toimisto. Kiinteistössä palvelee aulapalvelu, ja käytettävissä ovat myös edustavat saunatilat. Viereisessä talossa palvelee lounasravintola. Nämä viihtyisät toimitilat sijaitsevat sujuvasti Kehä II:n varrella.
Sisävalokuvat ovat malliesimerkkejä kiinteistön tiloista.
Karaportti 5 sijaitsee Kehä II:n varrella, Espoon Karamalmilla. Vuonna 2000 rakennettu kiinteistö tarjoaa toimitiloja joita voi muunnella vaivattomasti avo- ja huonetoimistoiksi sekä niiden yhdistelmiksi vuokralaisen tarpeiden mukaan.
Kolmannessa ja neljännessä kerroksessa on tarjolla uudenlaista yhteisöllistä toimistotilaa. Yritysten käytössä on tyylikkäät ja viihtyisät aula- ja taukotilat keittiöineen. Toimistotilojen lisäksi kohteessa on pienempiä studioita sekä erilaisia neuvottelu- ja projektityötiloja, joita vuokrataan kaikenkokoisille yrityksille.
Käytettävissä ovat edustavat saunatilat sekä aulapalvelu, viereisessä talossa palvelee lounasravintola. Kiinteistö sijaitsee hyvien kulkuyhteyksien päässä aivan Kehä II:n varrella. Pihalla ja parkkihallissa on runsaasti pysäköintitilaa
Kiinteistölle on myönnetty BREEAM In-Use ympäristösertifioinnin Very Good -taso.
Sijainti Turuntien ja Kehä II:n läheisyydessä, vain 20 min. Helsingin keskustasta.
