Vuokrataan toimistotilat - Helsinki
Lintulahdenkuja 10, 00500 Helsinki #10851307
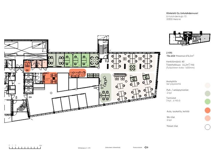
Vuokrattavana toisen kerroksen toimistotila. Kiinteistö sijaitsee Lintulahdessa, dynaamisessa tapahtuma- ja kohtaamispaikassa.
Korkealaatuista toimitilaa näkyvällä paikalla Helsingin Suvilahdessa. Lintulahdenvuori on monipuolinen toimistokiinteistö Sörnäisten rantatien varrella. Kiinteistö on valmistunut vuonna 2009. Suvilahti on dynaaminen tapahtuma- ja kohtaamispaikka teollisuusmiljöössä.
Kiinteistössä on oma aulapalvelu sekä lounasravintola. Ensimmäisessä kerroksessa sijaitsevien edustavien kokoustilojen käyttö kuuluu vuokraan. Vuokralaisten käytössä ovat myös suihku- ja sosiaalitilat. Cat6-kaapelointi. Pysäköintipaikkoja on vuokrattavissa erikseen kiinteistön pysäköintihallista.
Kiinteistölle on myönnetty ympäristösertifikaatti: LEED Core and Shell, korkein luokka eli Platinum.
