Vuokrataan toimistotilat - Helsinki
Itämerenkatu 3, 00180 Helsinki #10851306
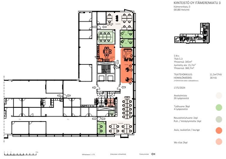
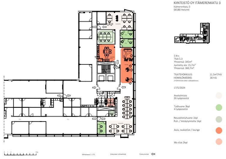
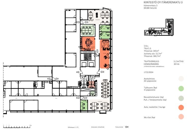
Vuokrattavana upea kombitoimisto 5. kerroksessa B-rapussa sisäpihalla. Tilan ikkunat ovat vehreän sisäpihan suuntaan. Tila sisältää: Keittiö-/sohvaloungen, neuvottelutilan, kaksi vetäytymistilaa, kolme toimistotilaa, varastotilan, kaksi wc:tä ja avotyöskentelytilan. Tila on upea ja täysin remontoitu laadukkailla ja vastuullisilla materiaaleilla sekä toimivalla tilaratkaisulla vastaamaan nykytyöelämän vaatimuksia. Sisävalokuvat ovat esimerkkejä kiinteistön tiloista ja antavat käsityksen tilan laadusta ja muotoilusta.
Uudistetut tilat merellisessä Ruoholahdessa.
Suuremmankin yrityksen tarpeisiin soveltuvaa muuntojoustavaa ja modernia toimitilaa keskeiseltä paikalta Ruoholahdesta. Rakennus sijaitsee keskellä Ruoholahden toimistoaluetta ja kohteelta on hyvät liikenneyhteydet metrolle, raitiovaunuun, bussipysäkeille, keskustaan ja Länsiväylälle. Pinnoiltaan ja tekniikaltaan uudistetut tilat valmistuivat 2019 aikana. Tilat ovat helposti muunneltavissa erilaisiksi kokonaisuuksiksi – tänne voi toteuttaa niin modernin huonetoimiston kuin monitilaympäristönkin yksilöllisten käyttötarpeiden mukaan.
Kaikkien kerrosten yhteinen vastaanotto on sijoitettu maantasokerrokseen. Kerroksen aulassa on kahvila- ja ravintolapalveluita sekä talon vuokralaisten käytössä olevia neuvottelutiloja. Kerros on kaikille avointa tilaa, jonka palvelut takaavat toimivan toimistoarjen. Kellarissa on henkilökunnan kuntosali, puku- ja pesutilat. Henkilökunnan pyöräpaikat on sijoitettu kellarin pysäköintihalliin.
