Vuokrataan liiketilat - Helsinki
Simonkatu 6, 00100 Helsinki #10851292
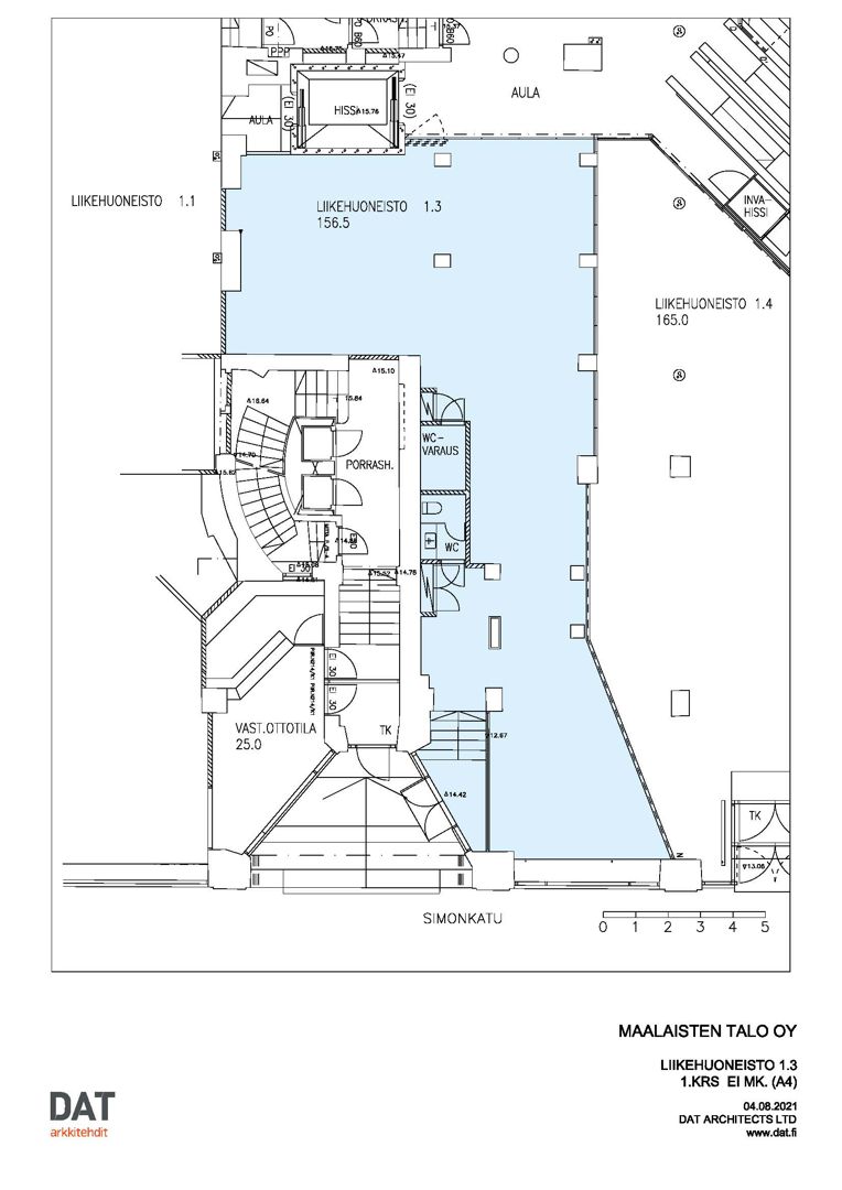
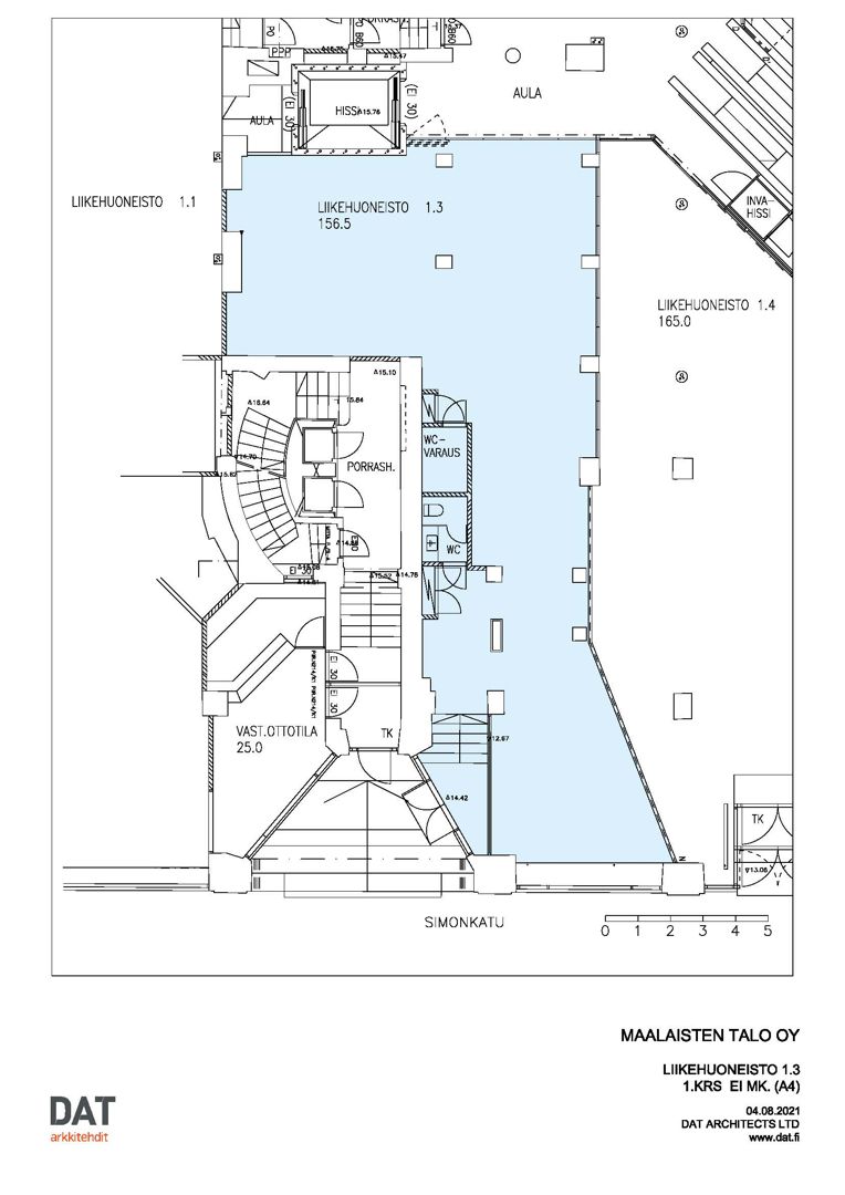
Erittäin näkyvällä paikalla sijaitseva 156 m² katutason liiketila Forum-korttelista. Sisäänkäynnit sekä Simonkadulta että kauppakeskuksen puolelta tarjoavat erinomaisen saavutettavuuden ja asiakasvirran.
Huom: tila ei sovellu ravintola- tai anniskelutoimintaan.
Liiketilojen vuokraus ja tiedustelut: C&W Retail Services, puh. 0108368400, retail.fi@cushwake.com.
Maalaisten talo.
Osoite
Simonkatu 6, 00100 Helsinki
Tilatyyppi
Liiketilaa
156 m2
Kulkuyhteydet
Kiinteistö sijaitsee Kampissa. Erinomaiset liikenneyhteydet julkisilla. Metroyhteydet Kampista tai Rautatientorilta. Bussiyhteydet Kampista, Elielinaukiolta tai Rautatientorilta. Junalle lyhyt kävelymatka. Raitiovaunuyhteydet Mannerheimintieltä. Pysäköinti Forumin parkkihallissa.
Vapautuu
Kysy
Ota yhteyttä
Pyydä lisätietoa
