Vuokrataan toimistotilat - Helsinki
Ruoholahdenkatu 8, 00180 Helsinki #10851280
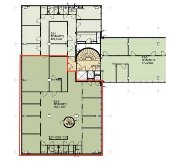
Vuokrattavissa tehokas 252 m2 toimistotila Helsingin ydinkeskustan tuntumassa. Sisävalokuvat ovat esimerkkejä kiinteistön tiloista.
Kiinteistö Oy Ruoholahdenkatu 8 tarjoaa liike- ja toimistotilaa hyvällä paikalla Helsingin ydinkeskustan tuntumassa. Rakennus on valmistunut vuonna 1956 ja 1964. Tilat on kokonaan peruskorjattu vuonna 2005.
Kiinteistön tehokkaat toimistotilat ovat helposti muunneltavissa käyttäjien tarpeisiin sopiviksi niin avokonttoriksi kuin huonetoimistoksi. Rakennuksessa on koneellinen ilmanvaihto ja jäähdytys.
Ruoholahdenkatu 8 sijaitsee hyvien liikenneyhteyksien varrella lyhyen kävelymatkan päässä Kampin metroasemalta. Rakennuksen sisäpihalla ja kellarissa on yhteensä noin 50 pysäköintipaikkaa. Rakennuksessa on koneellinen ilmanvaihto ja jäähdytys. Kellarissa autohalli.
