Vuokrataan liiketilat - Lahti
Apilakatu 1 LAHTI, 15610 Lahti #10851278
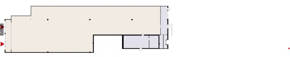
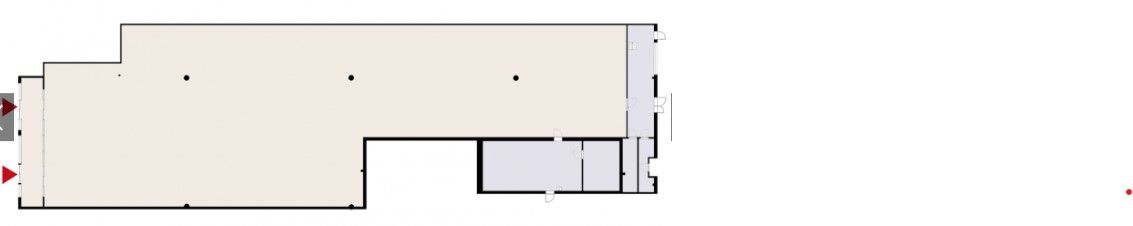
Ainutlaatuinen mahdollisuus Lahden alueen parhaalla kauppapaikalla, Prisman, XXL:n ja Lager157:n naapurissa sekä Eteläisen kehätien liittymän vieressä. Toimitilaan kuuluu 1192 m², pääosin 5,9 m korkea liiketila lastauslaiturilla ensimmäisessä kerroksessa sekä 50 m² varastotila toisessa kerroksessa.
Liiketilojen vuokraus ja tiedustelut: C&W Retail Services, puh. 010 836 8418, retail.fi@cushwake.com.
Erinomainen sijainti Lahden eteläisessä kauppakeskittymässä Launeella, Launeen Retail Parkissa. Parkkipaikkoja tarjolla runsaasti niin asiakkaille kuin henkilökunnalle. Kiinteistö on Breeam Very Good -ympäristösertifioitu.
Osoite
Apilakatu 1 LAHTI, 15610 Lahti
Tilatyyppi
Liiketilaa
1242 m2
Kulkuyhteydet
2,3 km juna-asemalle.
Vapautuu
Kysy
Ota yhteyttä
Pyydä lisätietoa
