Vuokrataan liiketilat - Helsinki
Siltasaarenkatu 10, 00530 Helsinki #10851246
Vuokrattavana 203 m² kokoinen ravintolatila huippusijainnilla osoitteessa Siltasaarenkatu 10. Tilava ja valoisa katutason liiketila on juuri valmistuneessa saneerauksessa uusittu ja modernisoitu. Suuret ikkunat tuovat runsaasti luonnonvaloa ja antavat tilalle näkyvyyttä vilkkaalle kadulle.
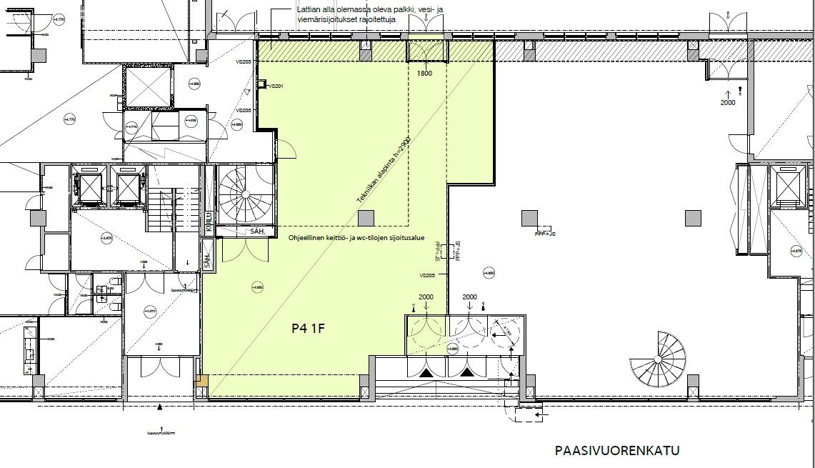
Tilassa on monipuoliset mahdollisuudet ravintolatoimintaan. Sijainti on erinomainen, ja alue vetää puoleensa runsaasti asiakkaita. Pohjakuvassa liiketila P4 1F.
Liiketilojen vuokraus ja tiedustelut: C&W Retail Services, puh. 010 836 8418, retail.fi@cushwake.com.
Siltasaari 10 -hanke. Siltasaari 10 puhaltaa elämää Hakaniemeen. Siltasaari 10 on sekoitus luovia yrityksiä, startupeja, kolmannen sektorin toimijoita, jaettua työtilaa ja huippumodernia, energiatehokasta toimisto-arkkitehtuuria. Tyylikäs sisäänkäynti toimistoihin ja ravintolatiloihin kulttuurihistoriallisesti arvokkaasta Siltasaarenkatu 8-10 kiinteistöstä. Kohde tarjoaa laadukasta toimistotilaa, jossa palvelut saavutettavissa kuivin jaloin kohteen 2.kerroksen toiminnallisen sydämen kautta. Katutasossa PT-kauppa, retail-tilaa sekä kahviloita ja ravintoloita. 2. kerroksessa laadukas ravintola-keskittymä, toimistojen welcome desk, yhteiskäyttöisiä neuvottelu-, tapahtuma- ja projektityötiloja sekä co-working alue. Laadukkaat ja helppokäyttöiset pyörävarastot sekä sosiaalitilat. Autopaikkoja kahdessa kellarikerroksessa. Toimistotilat ovat jaettavissa pienempiin yksiköihin tai yhdistettävissä isommiksi kokonaisuuksiksi joko samaan tasoon tai sisäportaalla kerroksien välillä. Yhteen tasoon saatavilla jopa 2855 m2 ja 317 työpistettä. Vuokrattavaa toimistotilaa yhteensä yli 16.000 m2. Kohteen saneeraus on valmistunut alkuvuonna 2022 historiaa ja ympäristöä kunnioittaen.
