Vuokrataan toimistotilat - Espoo
Revontulentie 7, 02100 Espoo #10851228
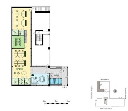
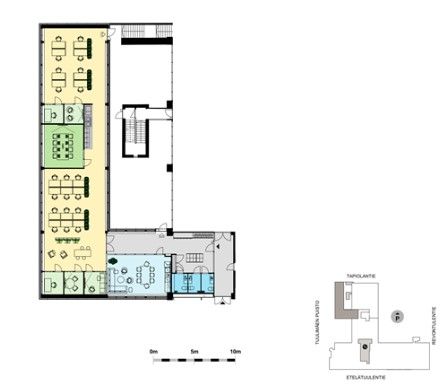
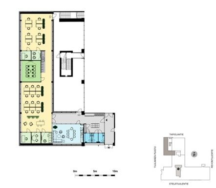
Kauniilla puistomaisemalle varustettu läpitalon muuttovalmis toimisto. Viisi vetäytymistilaa ja yksi 8 hengen neuvotteluhuone.Neuvotteluhuone jakaa avotoimiston kahteen erilliseen osioon. Vuokrattavissa osana 642m2 tilaa jolloin muodostuu yhteensä 1003,5m2 toimisto.
Ajaton ja uniikki. Uusi ja klassinen. Inspiroiva ja luonnonläheinen. Revontulentie 7 on merellisessä Tapiolassa kohoava moderni toimistoidylli täynnä yhteisöllisyyttä, mielenrauhaa ja mahdollisuuksia. Länsimetron varrella, Keilaniemen ja Otaniemen naapurissa sijaitseva Revontulentie 7 tarjoaa sinulle nykyaikaiset toimitilat, monipuoliset liikuntamahdollisuudet, sekä huippulaadukkaat palvelut, jotka nostavat yrityksesi hyvinvoinnin uudelle tasolle.
