Vuokrataan toimistotilat - Helsinki
Porkkalankatu 22, 00180 Helsinki #10851221
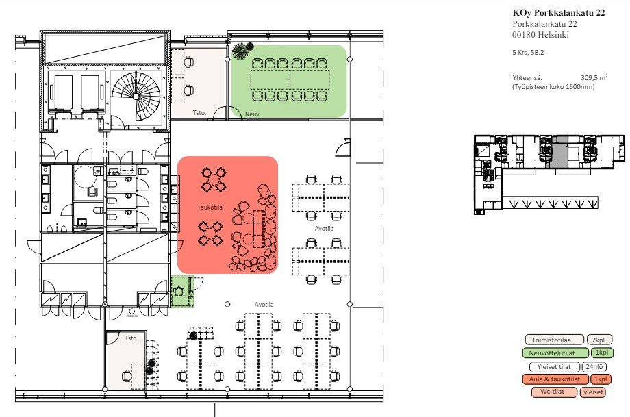
Vuokrattavana 310 m2 toimistotila. Tila on täysin remontoitu ja muuttovalmis. Kaikki Ruoholahden palvelut kävelymatkan päässä. Runsaasti pysäköintipaikkoja omassa hallissa. Kuvissa esimerkkejä toimistotiloista.
Vuonna 2008 valmistunut toimistotalo sijaitsee Ruoholahden paraatipaikalla. Vieressä sijaitsevat niin Ruoholahden Kauppakeskus palveluineen kuin metroasemakin. Kiinteistössä on aula- ja pitopalvelu, lounasravintola ja vuokrattavia neuvottelutiloja. Pysäköinti on järjestetty Ruoholahden pysäköintilaitoksessa, joista on hisseillä kulku kerroksiin.
Toimistotilat ovat moderni yhdistelmä huoneita ja avotilaa. Toimistotilojen ominaisuudet täyttävät kaikki nykyaikaisen toimistotyön vaatimukset. Ruoholahden Tähti toimistotalolle on myönnetty käytössä olevan kiinteistön BREEAM® In-Use ympäristösertifikaatti.
