Vuokrataan toimistotilat - Espoo
Lars Sonckin kaari 16 TERRA, 02600 Espoo #10851215
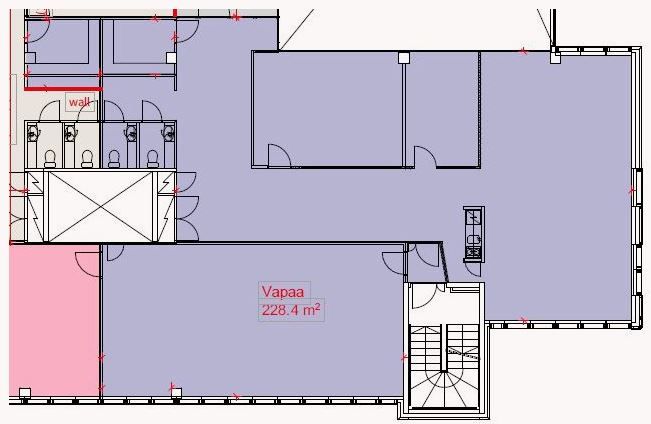
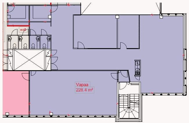
Vapaa valoisa neljännen 257 m2 kerroksen toimisto. Yrityspuiston monipuoliset palvelut varmistavat, että työpäivien lomassa nautit herkulliset lounaat, pesetät autosi ja huollat kehoasi kuntosalilla tai kiropraktikon käsittelyssä. Voit jopa istahtaa etäpalaverin ajaksi parturi-kampaamon hellään huomaan tai järjestää kattokerroksen saunatiloissa yrityksenne afterworkit. Stella Business Parkissa on vuokralaisille tarjolla monipuolisia palveluja liiketoiminnan tueksi. Suosittu sijainti Leppävaarassa juna-aseman ja Sellon palveluiden lähellä.
Stella Business Park TERRA ykköskehän varrella, lähellä Leppävaaraa ja Turunväylän liittymää. Korkeatasoiset palvelut, mm. aulapalvelut sekä toimistopalveluja. Lisäpalveluina autonpesu-, kuntosali- ja parturi-kampaamo. TERRA on Stella Business Parkin taloista viimeinen Lars Sonckin kaarelta lähestyttäessä ja se on myös taloista suurin. Yli 10 vuotta vanha Stella on juuri läpikäynyt mittavan ilmeen uudistuksen.
