Vuokrataan toimistotilat - Espoo
Bertel Jungin aukio 1 E-Talo, 02600 Espoo #10851170
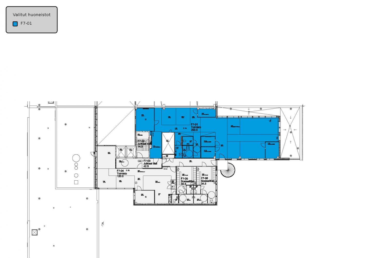
Vuokrattavana toimistotila erinomaisella sijainnilla Alberga Business Parkin E-talossa. Tila sijaitsee 7. kerroksessa ja on 279 m2.
Tämä tilava ja hyvin suunniteltu toimistotila tarjoaa monipuolisia mahdollisuuksia eri alojen yrityksille. Sijainti Kauppakeskus Sellon ja Leppävaaran aseman välittömässä läheisyydessä, Kehä I vieressä, takaa loistavat kulkuyhteydet sekä julkisilla että omalla autolla.
Alberga Business Parkista löytyy vuokralaiselle kaikki tarvittavat palvelut kuten; aulapalvelu, lounasravintola, kokoustilat, edustustilat ja sauna.
Alberga Business Park viimeinen osa, E-talo valmistui lokakuussa 2017. Modernia ja laadukasta toimistotilaa.
Alberga Business Park tarjoaa yrityksille toimivat ja ympäristöystävälliset tilat huippuluokan sijainnilla Leppävaarassa, kauppakeskus Sellon vieressä, Kehä I:n varrella.
