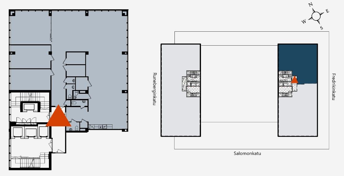
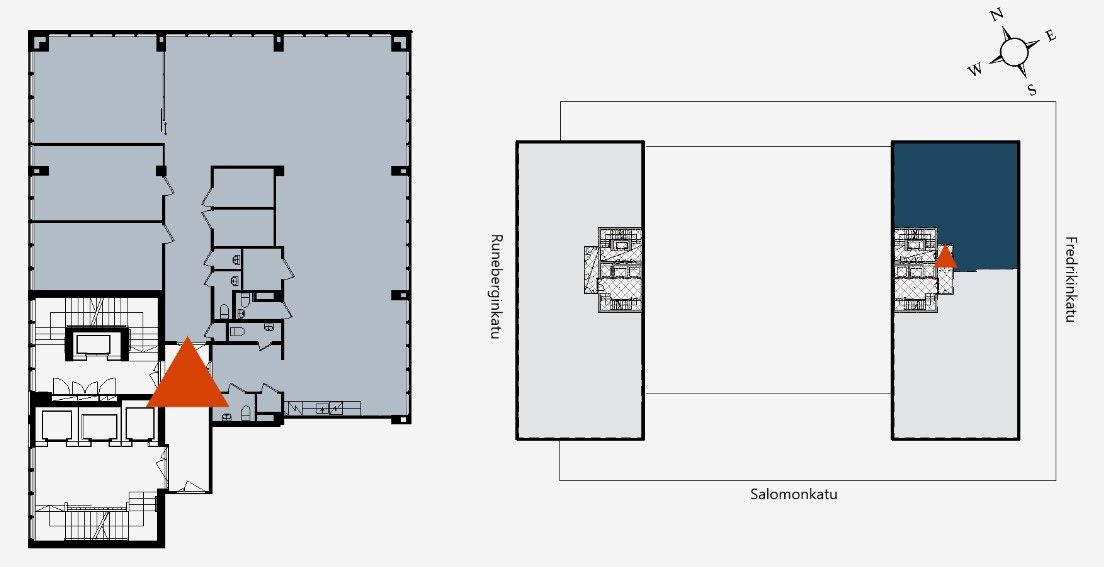
Vuokrataan toimistotilat - Helsinki
Salomonkatu 17, 00100 Helsinki #10851166
Upea monitoimitila A tornissa, 9. kerroksessa Autotalosta, Helsingin Kampista. Äskettäin remontoitu vastaamaan käyttäjän tarpeita. Vapautuu sopimuksen mukaisesti pikaisestikin.
Yksi Kampin tunnetuimmista maamerkeistä; uudistunut Autotalo näkyvällä paikalla Kampin kauppakeskuksen vieressä. Perinteikäs Autotalo valmistui Kamppiin 1958. Rakennuksessa on 12 kerrosta ja kolme maanalaista kerrosta.
Kiinteistössä valmistui vuonna 2015 mittava perusparannushanke: tiloja on avarrettu ja tehty niistä käyttäjilleen avoimempia. Autotalon aulatila on uudistettu erittäin näyttäväksi. Autotalon alakerrassa on kattava ravintolamaailma.
Autotalon kokoustilat vuokrattavissa. Kiinteistössä on parkkihalli, jonka autopaikat vuokraa Europark. Pyöräilijöille on siisti, lämmin pyöräparkki sekä sosiaalitilat suihkuineen.
