Vuokrataan liiketilat - Espoo
Koskelontie 15, 02920 Espoo #10851150
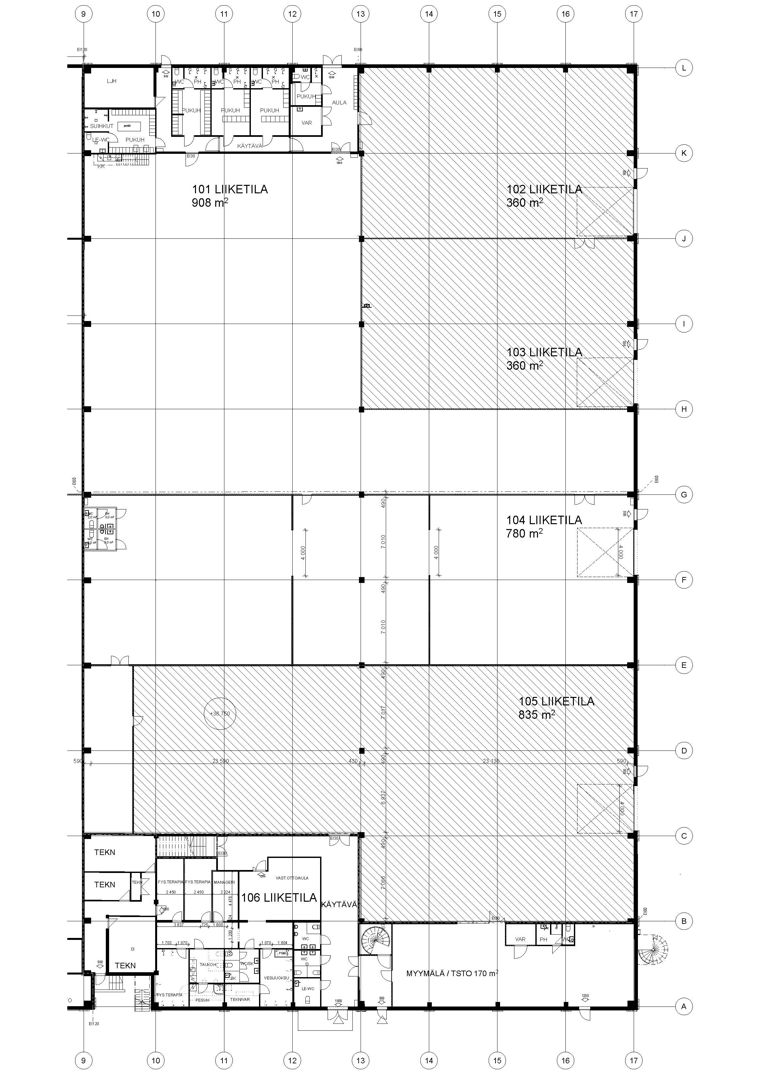
Vuokrattavana Kehä 3 varrella, Koskelon teollisuusalueella sijaitseva katutason liiketila. Kohteeseen on suora näkymä kehältä ja saavutettavuus on ensiluokkainen sekä idästä ja lännestä päin tuleville autoilijoille. Tila on ollut aiemmin autokaupan käytössä.
Liiketilojen vuokraus ja tiedustelut: C&W Retail Services, puh. 010 836 8418, retail.fi@cushwake.com.
Koskelontie 15 sijaitsee Kehä 3 tien liittymän varrella ja on helposti saavutettavissa sekä autolla että julkisilla kulkuneuvoilla. Autoilijoille on varattu runsaasti parkkitilaa kohteen edustalta. Koskelontien puolella kulkee bussilinjat 236V ja 566 ja näiden pysäkit sijaitsevat kohteen välittömässä läheisyydessä. Kiintiestössä operoi myös Fressi, Saka ja Wetteri.
