Vuokrataan toimistotilat - Espoo
Linnoitustie 9, 02600 Espoo #10851145
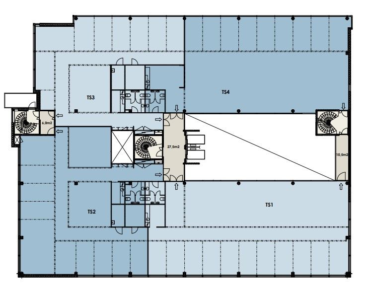
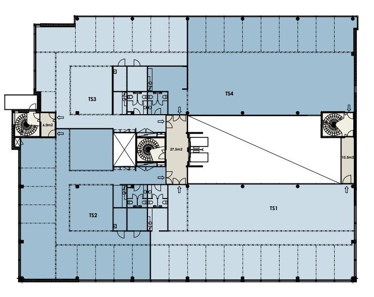
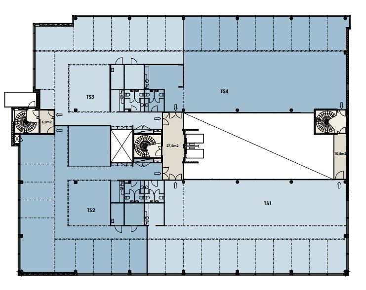
Vuokrattavana moderni 5. kerroksen 1333 m2 toimistotila. Tila on kokonaisuudessaan 1333m2, mutta mahdollista jakaa pienempiin kokonaisuuksiin 618 m2 ja 685 m2
Fuugassa on kaikki, mitä menestykselliseen liiketoimintaan tarvitaan. Quartetto-yrityspuisto tarjoaa kattavat palvelut vaativankin yrityksen makuun. Talossa toimii muun muassa lounasravintola, kahvio sekä aulapalvelu. Kuudennessa kerroksessa on vuokrattava saunatila. Yrityspuistosta löytyy myös liikunta- ja terveyspalveluita.
Quartetto tarjoaa nykyaikaiset toimitilat keskeiseltä paikalta kasvavasta ja kehittyvästä Leppävaarasta. Alueen palvelut ovat erinomaiset ja esimerkiksi kauppakeskus Sello liikkeineen ja ravintoloineen sijaitsee ihan vieressä. Paikalle pääsee kätevästi julkisilla yhteyksillä, kuten junilla ja busseilla. Leppävaaran juna-asema on lyhyen kävelymatkan päässä ja autolla pujahtaa hetkessä Kehä I:lle ja Turunväylälle. Raidejokerin pysäkki kiinteistön välittömässä läheisyydessä. Kiinteistössä on myös oma parkkihalli ja runsaasti pysäköintitilaa.
