Vuokrataan toimistotilat - Helsinki
Töölönkatu 4, 00100 Helsinki #10851118
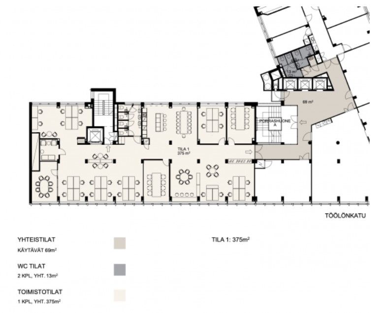
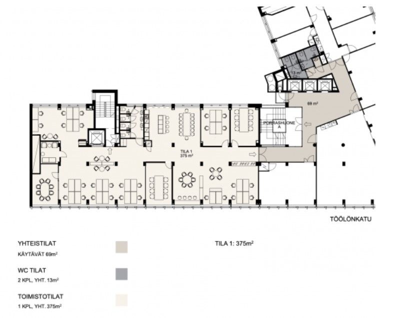
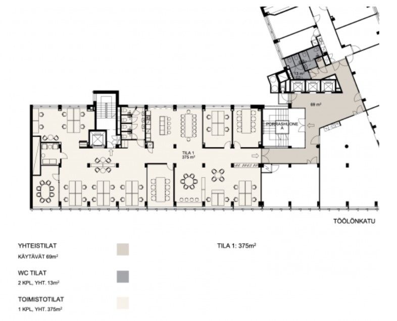
Vuokrattavana laadukas ja tilava toimistotila osoitteesta Töölönkatu 4. Tämä 370 m² toimistotila sijaitsee kiinteistön neljännessä kerroksessa, tarjoten upeat puitteet tehokkaaseen ja viihtyisään työskentelyyn.
Kiinteistössä on aulapalvelut ja runsaasti neuvottelutiloja. Kiinteistön ylimmässä kerroksessa on lounasravintola ja saunaosasto. Poikkeuksellisen hyvät catering-palvelut ja korkea turvallisuus.
Kuparitalo tarjoaa elegantisti uudistettuja toimistotiloja tapahtumien keskipisteessä, eduskunnan naapurissa. Vuonna 1957 Outokumpu Oy:n käyttöön valmistuneessa rakennuksessa pääkonttoritason arvokkuus kohtaa modernin raikkauden. Kaunis ja ajaton kupari elää sen historiassa, julkisivussa ja sisätilojen detaljeissa.
Kuparitalo sijaitsee Etu-Töölössä erinomaisten kulkuyhteyksien, kulttuuririentojen ja palveluiden keskellä, vajaan vartin kävelymatkan päässä rautatieasemalta ja Kampin keskuksesta.
