Vuokrataan toimistotilat - Helsinki
Valimotie 17, 00380 Helsinki #10851114
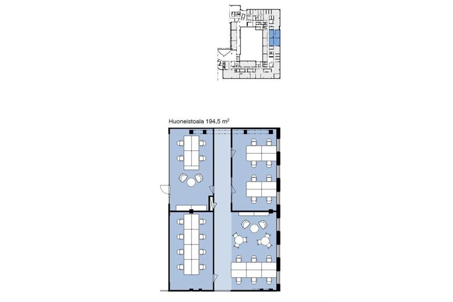
Vuokrattavissa laadukas ja tilava viidennen kerroksen 1718 m2 toimistotila. Runsaasti autopaikkoja parkkihallissa.
Pitäjänmäen Valimo on huolella uudistettu toimistorakennus valmiina tuleville menestystarinoille. Valimossa yhdistyvät laadukkaat, viihtyisät toimistotilat ja tehokkaat tilaratkaisut.
Liikenneyhteydet Valimoon ovat erinomaiset, sinne on helppo tulla ja sieltä pääsee kätevästi kaikkialle. Kiinteistössä on 454 autopaikkaa ja myös tuleva pikaraitiotie tulee parantamaan yhteyksiä Pitäjänmäen alueelle merkittävästi.
Vuokralaisten käytössä on aulapalvelu, henkilöstöravintola, auditorio, henkilökunnan virkistäytymistilat uima-altaineen, edustustilat, sauna sekä takkahuone. Pihatasolla ja autohallissa on runsaasti pysäköintipaikkoja vuokralaisten käyttöön.
