Vuokrataan toimistotilat - Espoo
Tekniikantie 4 A, 02150 Espoo #10851092
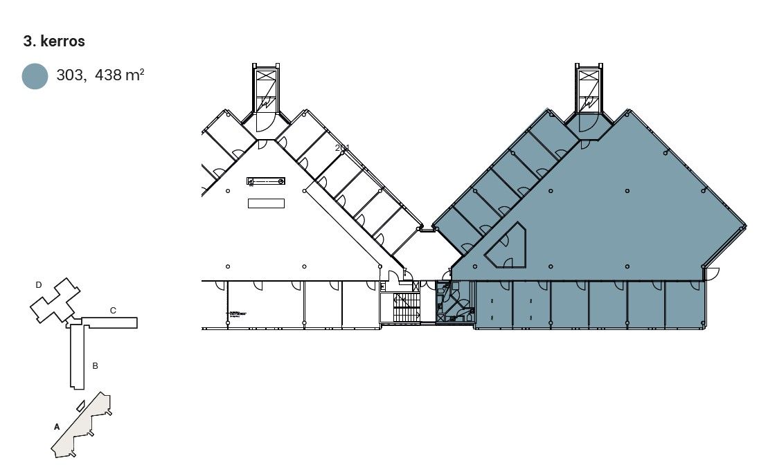
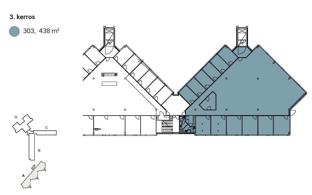
Vuokrattavissa A-talosta 3. kerroksen toimistotilaa. Tilaan ei suoraa hissi yhteyttä, jonka takia hinta alhaisempi. Tilat voidaan räätälöidä käyttäjän toiveiden mukaisesti huonetiloiksi, avotilaksi tai näiden yhdistelmäksi. Kiinteistön tilat ovat valoisia ja viihtyisiä. Kohteeseen on tehty perusteellinen uudistus, jolloin myös talo- ja ilmastointitekniikka päivitettiin montelta osin nykypäivään. Sisävalokuvat ovat malliesimerkkejä kiinteistön tiloista. Huom. tähän tilaan ei suoraa hissi yhteyttä.
Aallonharja tarjoaa vuokralaiselle kattavat palvelut, näitä on mm.
- Aulapalvelut
- Auditorio
- Kuntosali
- D-talon kattokerroksessa sijaitseva ainutlaatuinen kelosauna
- A-taloon avattu laadukas lounasravintola
- D-talon aulan kahvila palvelee maanantaista perjantaihin myös monipuolisen aamiaisen merkeissä.
Aallonharja A-talo; nostalgista Otaniemen henkeä täysin uusituissa tiloissa. Espoon Otaniemessä sijaitseva Aallonharja tarjoaa ensiluokkaiset toimintapuitteet. Perusteellisesti uudistetun toimitilakiinteistön seinien sisällä yhdistyvät tyylikkyys ja viihtyisyys. Kokonaisuuden kruunaa monipuolinen palvelukattaus. BREEAM-sertifikaattia hakevan Aallonharjan kaikki kulutussähkö on peräisin uusiutuvista lähteistä ja jätehuolto on hiilineutraali. Kiinteistön on saavutettavissa helposti niin autolla, julkisilla kulkuvälineillä kuin pyörälläkin. Autopaikkoja pihalla ja pysäköintihallissa, ja kiinteistöllä on oma sähköpyöräasema.
