Vuokrataan toimistotilat - Espoo
Keilaranta 13 A, 02150 Espoo #10851072
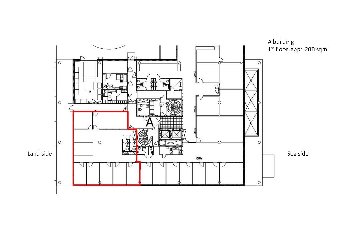
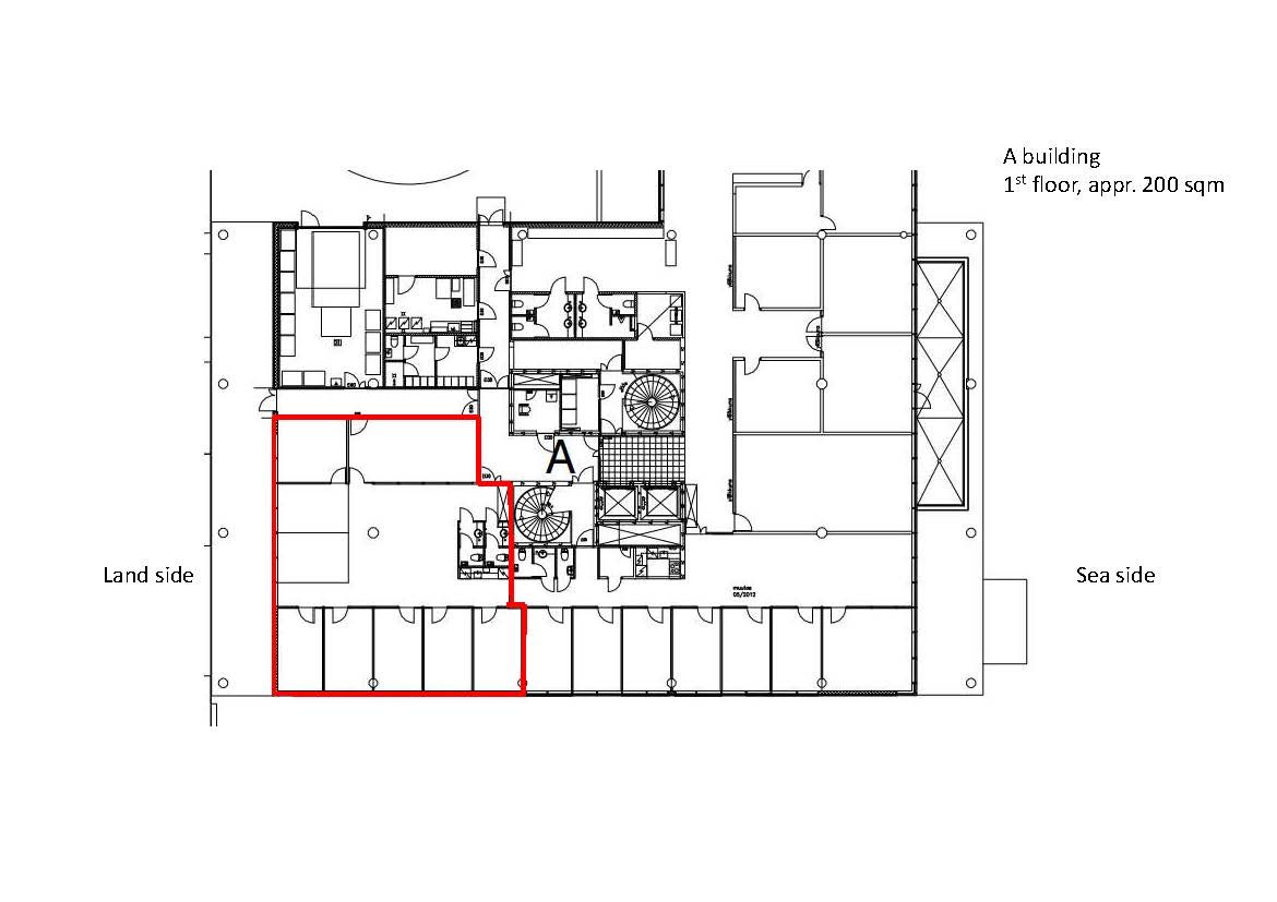
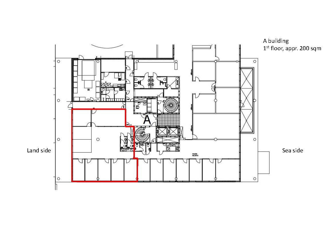
Ensimmäisen kerroksen moderni toimistotila, noin 200 m2.
HTC Waterfront Keilaniemi sijaitsee paraati paikalla aivan meren äärellä ja tarjoaa toimistotiloja, jotka ovat muunneltavissa vuokralaisten toiveiden mukaisesti. Waterfront tarjoaa asiakkailleen suositun lounasravintolan, catering-palvelut, 24h toimivan kioskin sekä aulapalvelut. Waterfontista löytyy myös kuntosali, erilliset suihku- ja pukuhuonetilat sekä pyöräparkki ja sähköautoille omat latauspisteet. Pysäköintimahdollisuudet sekä ulkona, että maanalaisena ja useita vieraspaikkoja on myös saatavilla. Toimistovukralaille on myös varattu venekiinnityspaikkoja ja viereiseltä toimijalta voi vuokrata vesijettejä tai vaikka pelata Padelia kelluvalla kentällä.
Toimisto meren äärellä. Nyt uutuutena lasi iglot terassilla jossa voit tehdä töitä ulkona vaikka syyskeli viileneekin.
Löydä yrityksellesi tukikohta Espoon Keilaniemestä, Suomen suurimmasta ja arvostetuimmasta yrityskeskittymästä. Viihtyisät tilamme sijaitsevat upeissa maisemissa meren äärellä, hyvien kulkuyhteyksien päässä. Toimistotilat ovat muunneltavissa juuri sinun tarpeidesi mukaisiksi.
HTC Waterfront Keilaniemi koostuu osoitteen Keilaranta 13-17 kolmesta talosta A-C, jotka kaikki ovat saavuttaneet kansainvälisen BREEAM-ympäristösertifikaatin Very Good- tason.
Suosittu lounasravintola, josta myös catering-palvelut, Taloa palvelee kaksi aulaa jotka auttavat vieraat perille ja toivottavat hyvää päivää. Talossa on juuri uudisteeetu freessi punttisali omilla pukuhuoneilla. Lisäksi löytyy myös suihku- ja pukuhuonetilat työmatkapyöräilijöile. Erillisveloituksella neuvotteluhuoneita katutasossa. Maanalainen pysäköintitaso sekä pihapaikoitus, runsaasti vieraspaikkoja autoille sekä venepaikkoja toimiston vuokralaisille. Sähköautojen latauspisteitä. Tietojärjestelmät ja talotekniikka edustavat alan kärkiosaamista.
Talon edustalla on myös kelluva Padel kenttä ja vesijettivuokraus.
