Vuokrataan toimistotilat - Espoo
Linnoitustie 4 B, 02600 Espoo #10851055
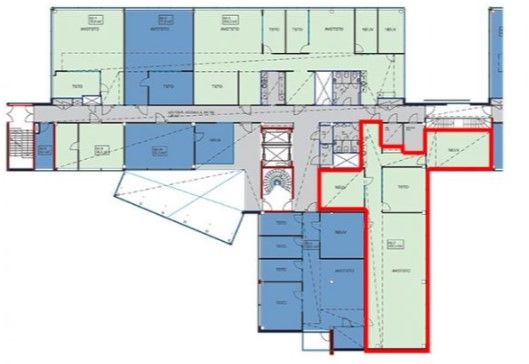
Toimistotila Quartetto Business Parkin 2. kerroksessa. Muunneltavissa huonekonttorista combikonttoriksi tai avotilaksi. Yrityspuiston toimitilakonsepti ja siihen liittyvä palvelukokonaisuus on suunniteltu vaativan yrityksen tarpeisiin.
Quartetto Business Parkin ALTO-talo. Keskeinen sijainti Leppävaaran business-keskittymässä. Yrityspuistossa yhdistyvät monipuoliset palvelut, joustavat toimitilat, sekä laadukkuus viihtyvyydestä tinkimättä. Neuvottelutilat, lounasravintola, edustussaunat, kuntosali, aulapalvelu oheispalveluineen sekä liikunta- ja fysioterapiapalvelut. Viimeisimmän standardin mukainen tiedonsiirtoverkko ja toimiva kiinteistöautomaatio. Runsaasti autohallipaikkoja.
Quartetto Business Campuksen ensimmäinen yrityspuisto, Quartetto Business Park, valmistui vuosina 2001-2002. Yrityspuiston neljässä talossa Violin, Alto, Basso ja Cello toimii noin 50 yritystä yhteensä noin 20 000 m2:n moderneissa tiloissa. Quartetto Business Campus laajeni myös Linnoitustien toiselle puolelle, kun Quartetto Plus Business Parkin talot Estrade ja Fuuga valmistuivat vuonna 2003. Gongi-talo valmistui vuonna 2009 ja Harmonia-talo vuonna 2010. Quartetto Business Parkin viimeisin talo Intermezzo valmistui vuonna 2012.
