Vuokrataan toimistotilat - Helsinki
Pasilan Asema-aukio 1, 00520 Helsinki #10851052
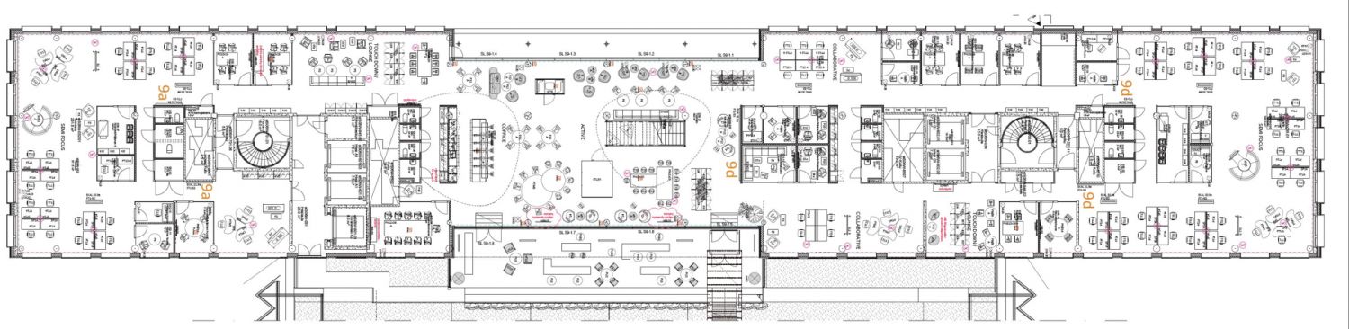
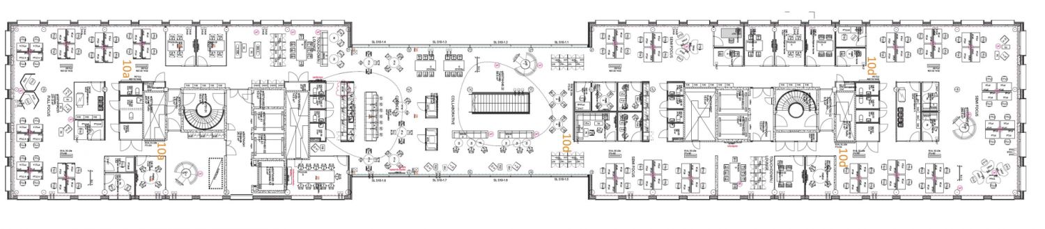
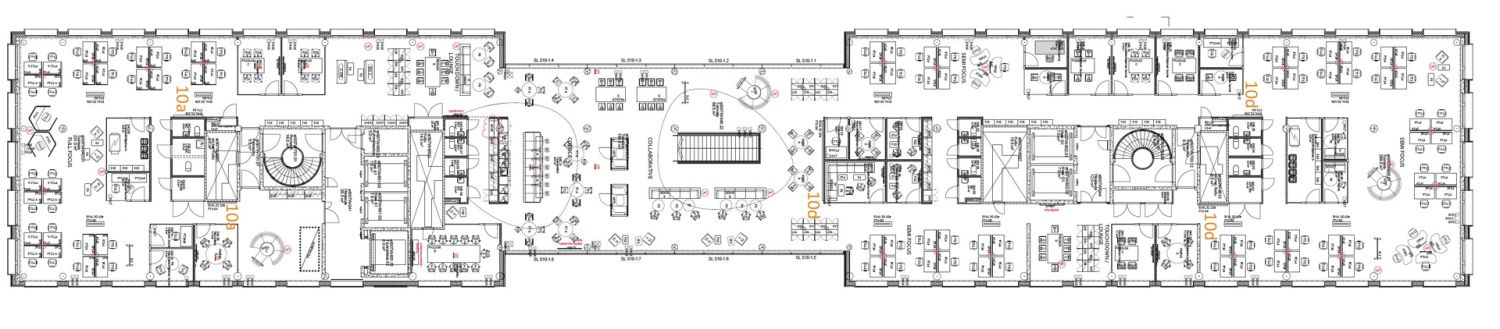
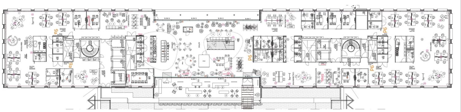
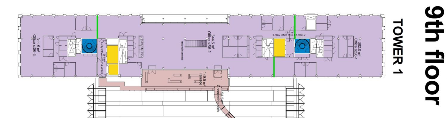
Vuokrattavana 9. ja 10. kerroksen 2800 m2 kokoinen toimistotila. Kerroskoko on n. 1400 m2 ja tilat ovat yhdistettyinä sisäisillä portailla. Tilassa suuret ikkunat, joista mahtavat maisemat kaupungin kattojen ylle. Kyseessä on täysin poikkeuksellinen tila saavutettavuuden ja Mall Of Triplan palveluiden vuoksi. Triplaan on helppo tulla kaikista suunnista ja kaikilla kulkuvälineillä. 10. kerroksesta löytyy uniikki kattoterassi.
Workery on Pasilan Triplassa uuden työn keskittymä. Ruuhkassa murjottamisen ja koppikonttoreiden aika on ohi: tämä kolmen toimistorakennuksen muodostama kokonaisuus tavoittelee mahdollisimman kitkatonta arkea. Workeryn helppo saavutettavuus, Mall of Triplan palvelut ja uuden työn ehdoilla kehitetty tilankäyttö takaavat parhaan arjen ja rohkeasti tulevaisuuteen suuntaavan työyhteisön.
Tripla Workery on suunniteltu kestämään aikaa. Aina vaikuttavimmista pääkonttoritason tiloista pieniin ja keskisuuriin toimistoihin ne täyttävät vaatimukset, joihin muuttuva työ ja maailma yrityksesi haastaa.
Pasilan uudet liikennejärjestelyt ja Triplan moderni pysäköintilaitos sujuvoittavat autoilijoiden elämää. Triplaan on helppo saapua myös uusien kevyen liikenteen väyliä pitkin ja jättää pyörä turvalliseen pyöräparkkiin.
