Vuokrataan toimistotilat - Helsinki
Aleksanterinkatu 48, 00100 Helsinki #10851041
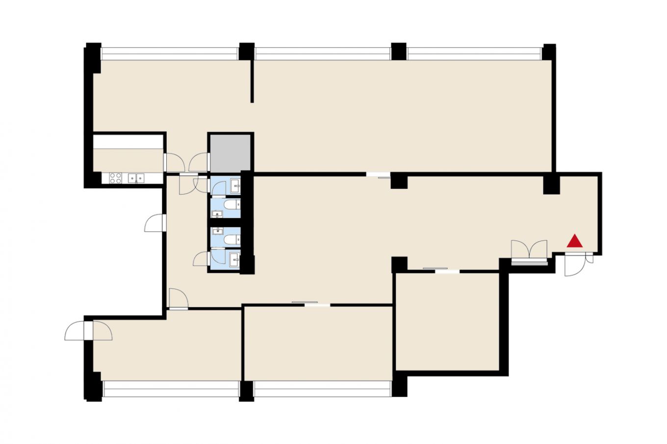
Moderni ja tilankäytöltään tehokas avotoimisto paraatipaikalla Helsingin keskustassa, johon on mahdollista toteuttaa juuri sinun yrityksesi tilatarpeita vastaava ratkaisu. Vuokrattava tila on pääosin avotilaa, mutta tilaan on myös mahdollista saada sekä huoneita että avotoimistoa. Tila on suunniteltu noin 16-20 henkilölle neuvottelutiloineen. Tilassa on kaksi wc:tä sekä kahvikeittiö. Tilan tuloilma on jäähdytetty.
Helsingin ydinkeskustassa prime -paikalla sijaitseva toimistokiinteistö, joka on sisätiloiltaan hiljattain täysin uudistettu. Huoneistoissa on sekä avotilaa että toimistohuoneita ja neuvottelutiloja. Arkkitehti Kurt Simbergin suunnittelema toimisto- ja liikerakennus on valmistunut vuonna 1956.
Yhdeksänkerroksisessa rakennuksessa on toimistotilaa yhteensä n. 8.100 m2. Rakennuksen 1. ja 2. kerros sekä puolet kellarikerroksesta toimivat liiketiloina. Liiketilojen laajennus valmistui keväällä 2010. Samassa yhteydessä uusittiin toimistotilojen pääsisäänkäynti ja myös sisätilat on hiljattain täysin uudistettu.
Rakennuksen tekniikka on ajanmukaistettu 2000-luvulla. Toimistotilat on varustettu nopeaan tiedonsiirtoon soveltuvalla cat 6 -yleiskaapelointijärjestelmällä. Toimistotiloissa on jäähdyttävä ilmastointi.
Aleksi48:n ympärillä, alle korttelin matkan päässä on yli 30 tasokasta lounasravintolaa. Lukuisat keskustan pysäköintilaitokset tarjoavat sopimuspysäköintiä. Lähin parkkihalli on Aleksi48:a vastapäätä oleva WTC:n AutoParkki. Myös esim. Q-park Stockmann ja EuroPark P-Kluuvi ovat vain kivenheiton matkan päässä Aleksi48:sta.
