Vuokrataan toimistotilat - Helsinki
Kiviaidankatu 2, 00210 Helsinki #10851039
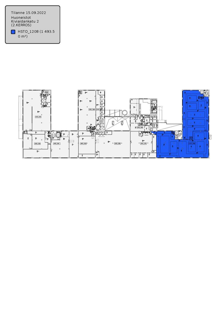
Vuokrattavana 2. kerroksen toimisto/varastotila, johon on kaksi tavarahissiyhteyttä. Tila jaettavissa.
Teollisuushenkinen toimistotalo Lauttasaaressa. Aikoinaan Helsingin Villakehräämönä tunnettu kiinteistö, Kiviaidankatu 2, on yksi Lauttasaaren vanhimmista teollisuuskiinteistöistä. Rakennuksen näkyvin osa lienee 62 metriä korkea savupiippu. Tänä päivänä kohteesta löytyvät modernit toimistotilat, jotka ovat muokattavissa ja remontoitavissa tulevien käyttäjien yksilöllisiä tarpeita vastaaviksi. Kiinteistöstä löytyy myös tavarahissi. Autopaikkoja rajoitetusti pihalla ja hallissa. Kiinteistössä on iso päivittäistavarakauppa ja kuntosali. Alueella on useita lounasravintoloita, joista lähimmät sijaitsevat kolmen minuutin kävelymatkan päässä kohteesta.
