Vuokrataan liiketilat - Helsinki
Kasarmikatu 44, 00130 Helsinki #10850985
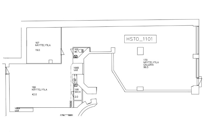
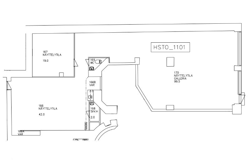
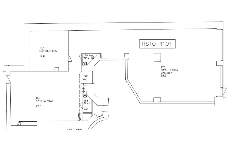
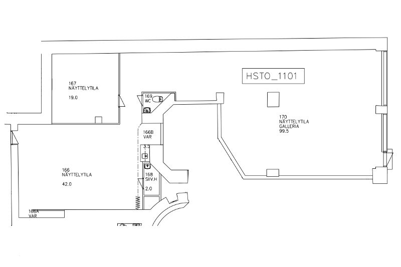
Vapautumassa valoisa ja tilava liiketila Helsingin keskustassa, osoitteessa Kasarmikatu 44. Katutason 162 m² liiketila sijaitsee Kaartinkaupungissa, lähellä Esplanadin puistoa ja vain lyhyen kävelymatkan päässä Kauppatorilta. Tila tarjoaa erinomaiset puitteet monenlaisille liiketoiminnoille, ja sen yhteydessä on myös oma varasto. Kiinteistö sijaitsee Helsingin ydinkeskustassa, vilkkaalla alueella, jossa on runsaasti palveluita ja asiakasvirtaa.
Liiketilojen vuokraus ja tiedustelut: C&W Retail Services, puh. 010 836 8418, retail.fi@cushwake.com.
Arvokiinteistö Rikhardinkadun ja Kasarmikadun kulmassa Esplanadin lähellä. Kohteessa on pääasiassa toimistotilaa sekä muutama kivijalassa sijaitseva liiketila. Alakerrassa sijaitsee viihtyisä ravintola. Kaikki keskustan palvelut ja lukuisat lounasravintolat sijaitsevat vain kivenheiton päässä kohteesta.
