Vuokrataan toimistotilat - Helsinki
Kasarmikatu 44, 00130 Helsinki #10850976
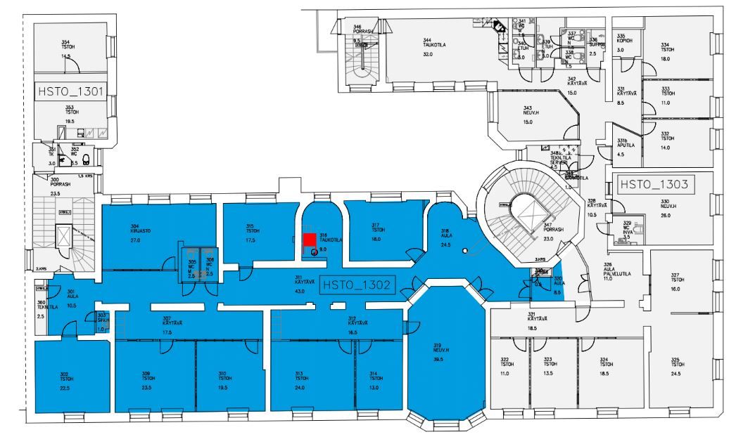
Vuokrattavana tilava 346 m2 huonetoimistotila, joka voidaan remontoida huonetoimisto- tai monitoimitilaksi tarpeen mukaan. Kiinteistö sijaitsee Helsingin ydinkeskustassa, Esplanadin puiston kupeessa, viiden minuutin kävelymatkan päässä Kauppatorilta.
Arvokiinteistö Rikhardinkadun ja Kasarmikadun kulmassa Esplanadin lähellä. Kohteessa on pääasiassa toimistotilaa sekä muutama kivijalassa sijaitseva liiketila. Alakerrassa sijaitsee viihtyisä ravintola. Kaikki keskustan palvelut ja lukuisat lounasravintolat sijaitsevat vain kivenheiton päässä kohteesta.
Osoite
Kasarmikatu 44, 00130 Helsinki
Tilatyyppi
Toimistotilaa
346 m2
Kulkuyhteydet
Raitiovaunu- ja bussipysäkeille matkaa 400 m, metroasemalle 600 m ja juna-asemalle 800 m.
Vapautuu
Kysy
Rakennusvuosi
1899
Ota yhteyttä
Pyydä lisätietoa
