Vuokrataan toimistotilat - Espoo
Niittyrinne 7, 02270 Espoo #10850939
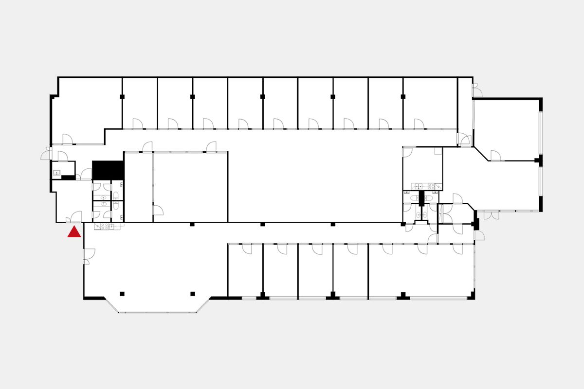
Vuokrataan kiinteistön kolmannessa kerroksessa sijaitseva muuntojoustava toimistotila. Tila on muokattavissa avo-, huone- tai monitilatoimistoksi vuokralaisen tarpeiden mukaan. Jaettavissa kahdelle käyttäjälle. Perille pääsee niin autolla kuin julkisilla liikennevälineillä.
Monipuoliseen toimistokäyttöön suunniteltu kolmikerroksinen kiinteistö. Valoisaa ja avaraa tilaa. Vuokrattava saunatila neljännessä kerroksessa. Vuokrattavat autopaikat pihalla.
Osoite
Niittyrinne 7, 02270 Espoo
Tilatyyppi
Toimistotilaa
740 m2
Kulkuyhteydet
Sujuvat yhteydet eri puolille pääkaupunkiseutua. Hyvät bussiyhteydet. Helsingin ydinkeskustaan on matkaa vain n. 15 km.
Vapautuu
Kysy
Ota yhteyttä
Pyydä lisätietoa
