Vuokrataan toimistotilat - Espoo
Ahventie 4, 02170 Espoo #10850937
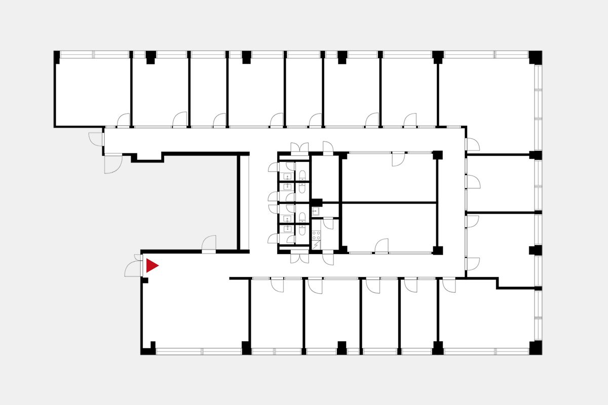
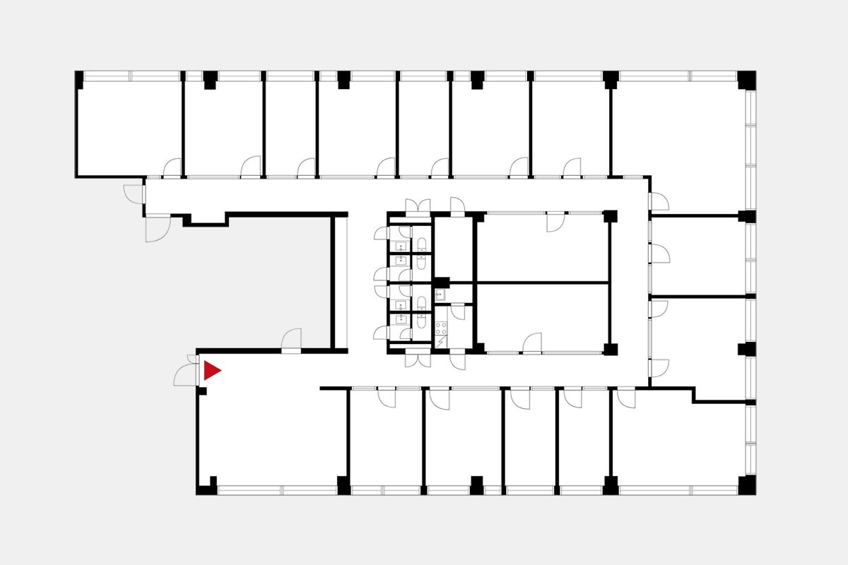
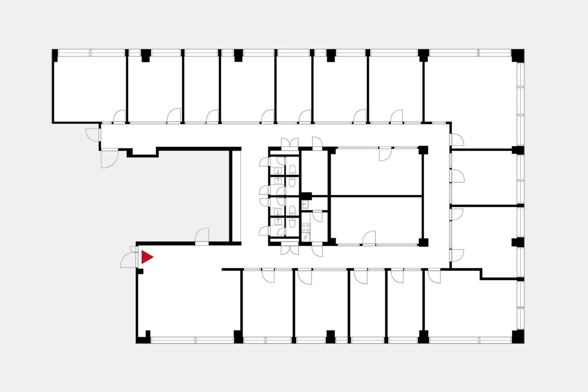
Vuokrataan valoisa toimitila Ahti Business Parkin viidennestä kerroksesta. Kiinteistö tarjoaa vuokralaisille kattavan palvelukokonaisuuden, joka sisältää esimerkiksi aulapalvelun, neuvottelutiloja sekä viihtyisän lounasravintolan. Business Park sijaitsee merellisessä Haukilahdessa, loistavalla näköalapaikalla, aivan Länsiväylän varrella.
Ahti Business Park. Länsiväylälle näkyvä toimistokiinteistö, joka on ollut Haukilahden maamerkki vuodesta 1978 alkaen. Talossa on lounasravintola sekä runsaasti vuokrattavia autopaikkoja kahdessa tasossa. Hyvät yhteydet. Remontoidut tilat, joissa saatavissa peruspalvelut (tietoliikenne-, siivous- ja aulapalvelut). Tilat on helposti jaettavissa ja yhdistettävissä kevyiden väliseinien ansiosta. Kohteessa myös vuokrattavia neuvottelutiloja sekä viihtyisä saunatila (max. 15 hengelle) kiinteistön 7. kerroksessa. Pysäköintipaikkoja parkkihallissa ja ulkokannella.
