Vuokrataan toimistotilat - Espoo
Mänkimiehentie 4, 02780 Espoo #10850933
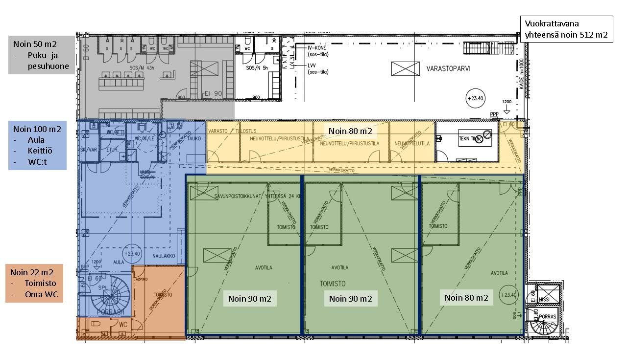
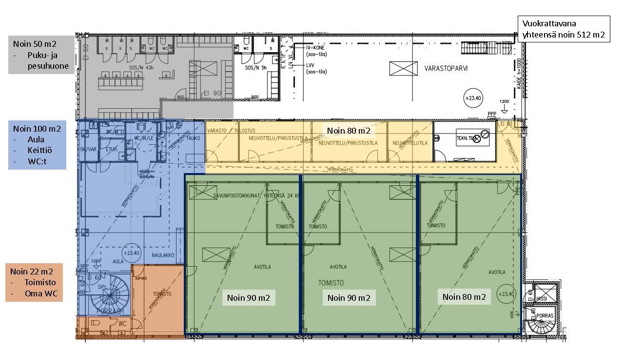
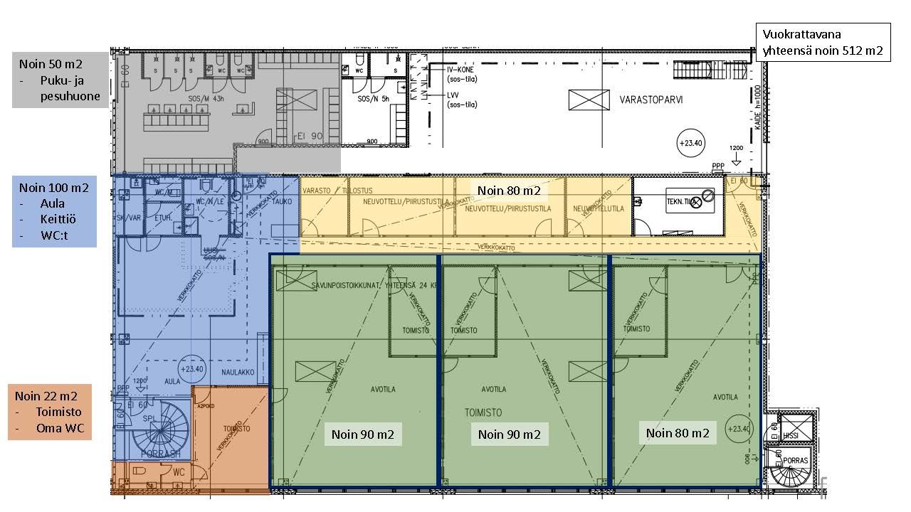
Huippusiistiä nykyaikaista toimistotilaa Kauklahdessa logistiikka/varastorakennuksen toisessa kerroksessa. Tilat tehty noin kaksi vuotta sitten. Toimistotila voidaan jakaa esimerkisi kolmelle ryhmälle, jolloin sosiaaltilat ja keittiö olisivat yhteiskäytössä.
Tilaan on ulkoa kaksi sisäänkäyntiporrasta ja hissi. Tarvittaessa tavarakuljetuksiin käytettävissä lastauslaituri.
Tilaan sisältyy erillinen pesu- ja pukuhuone, jossa on tila jopa noin 50 henkilölle.
Mänkimiehentie 4 sijaitsee Espoon Kauklahden teollisuusalueella. Vuokrattavana oleva varasto-osa on rakennettu 1997 ja toimisto 1990, jonka jälkeen toimisto on peruskorjattu pari vuotta sitten nykyaikaiseksi. Samaa kiinteistössä toimii myös konevuokraamo ja talotekniikka-alan yritys.
Hyvät liikenneyhteydet Kehä III pitkin kaikille pääväylille, erityisesti Turuntielle ja Länsiväylälle. Ajoaika lentoasemalle alle puoli tuntia. Juna-asemalle kävelymatka noin 900 m ja bussipysäkille noin 500 metriä.
