Vuokrataan toimistotilat - Helsinki
Pohjoisesplanadi 35, 00100 Helsinki #10850903
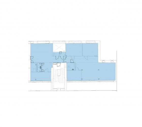
Vuokrattavana 6. kerroksen toimistotila historiallisessa rakennuksessa osoitteessa Pohjoisesplanadi 35. Tämä 224 m² tila sijaitsee upealla paikalla Helsingissä ja tarjoaa ainutlaatuisen mahdollisuuden rakentaa tilat juuri käyttäjän tarpeiden mukaan. Tila sijaitsee arvostetussa historiallisessa rakennuksessa, joka yhdistää vanhan ajan charmia moderniin toimintaan. Tila rakennetaan käyttäjälle, joten voit räätälöidä sen täysin yrityksesi vaatimusten ja mieltymysten mukaisesti. Sijainti Pohjoisesplanadilla tarjoaa erinomaiset kulkuyhteydet ja pääsyn Helsingin keskustan palveluihin.
Pohjoisesplanadin ja Mikonkadun kulmassa, viihtyisän Esplanadin puistokadun varrella sijaitseva arvokiinteistö on valmistunut 1888 arkkitehtinään K. A. Wrede. Kiinteistössä on valmistunut perusparannustyöt, jotka on tehty kiinteistön arkkitehtuuria ja arvokasta historiaa kunnioittaen. Uudet nykyaikaiset toimistot ovat vertaansa vailla tunnelmallisessa ja arvokkaassa rakennuksessa.
Kiinteistön laadukkaita toimistotiloja vuokrataan monen kokoisille yrityksille. Kohteessa on tehokkaat tilaratkaisut, jotka voi joustavasti hyödyntää monitilaympäristönä. Rakennuksessa on koneellinen ilmanvaihto ja jäähdytys.
